成都市奥园锦官芳华
成都奥园锦官芳华位于熊猫大道,坐拥约3000亩的北湖公园、约2100亩凤凰山公园、约1000亩大熊猫繁殖基地、约2930亩国际熊猫风情小镇等近万亩生态屏障。陈设设计由丰富的生态资源起意,持续升级的文化与城市原生魅力带领我们开启这场解码之旅。
- 项目名称:成都市奥园锦官芳华
- 项目地点:四川省 成都市 成华区熊猫大道
- 开发商:奥园集团
- 销售参考价:¥21000/㎡
- 项目类型:住宅
- 形态:示范区
- 市场定位:改善系
- 建成时间:2020年
- 风格:现代
- 占地面积:127408.11㎡
- 建筑面积: 440603.06㎡
- 容积率:2.38
- 绿化率:30%
- 发布日期:2021-07-14
- 最近更新:2021-07-20 19:25
对设计风格产生影响的要素有很多 ,其中城市气质是时常提及到的一点。
成都,一座国际化的城市,积极蓬勃的力量让发展脚步越走越快。这一次我们把目光收回,重新审视那些打动人心的天然产物,向天府之国最原始的城市气质发起探究。



陈设设计由丰富的生态资源起意,持续升级的文化与城市原生魅力带领我们开启这场解码之旅。


设计师擅长用天然元素诠释空间,入户门厅没有遮掩,阳光肆意照进室内,万物生灵的力量自然而然从外到内,任其伸展。




也许是与生俱来的基因传承,竹,清雅脱俗,不管出现在什么样的风格中,总能带着东方的魂。
假说我们把熊猫比作成都的魂,那竹就是城市气质的魄。据记载自1993年起,成都每年都会举行竹类相关展览。竹,与这个城市的联系密不可分。


元禾大千设计团队从城市的符号中获取材质灵感,将寻常生活可见的竹透过艺术化的方式表现。
不止于形式上的创新,还引发着以小见大的思考 ,指引人们的思绪回望城市的气质。



「熊猫与竹」既是成都的名片,又是空间引导性元素。
从入户到整体动线的起承转合,陈设设计融合独到的东方美学,大量留白突出设计重点,艺术解码之旅步步向上更加清晰。






空间的转换,由熊猫与竹做指引。
在这个尺度开阔的区域,大型吊灯寥寥几笔潇洒扬起,奠定空间平和的调性。米灰色铺满目之所及,座椅呈围合式组合矩阵排列,家具选择介于地板与墙面之间的灰棕色,整体色彩统一和谐,透露出朴实无华的宁静。




大型落地窗不作任何遮挡,随天外日光倾斜,任窗外树叶飘洒,自有一方天地可谈可闲。材质、光感、艺术三者之间彼此烘托构成一景。
闲适淡然的空间逸趣成为闹市中的逃离之所,我们用设计放大城市气质,与来客轻松对话。




风从东方来,竹舞锦官芳华里




















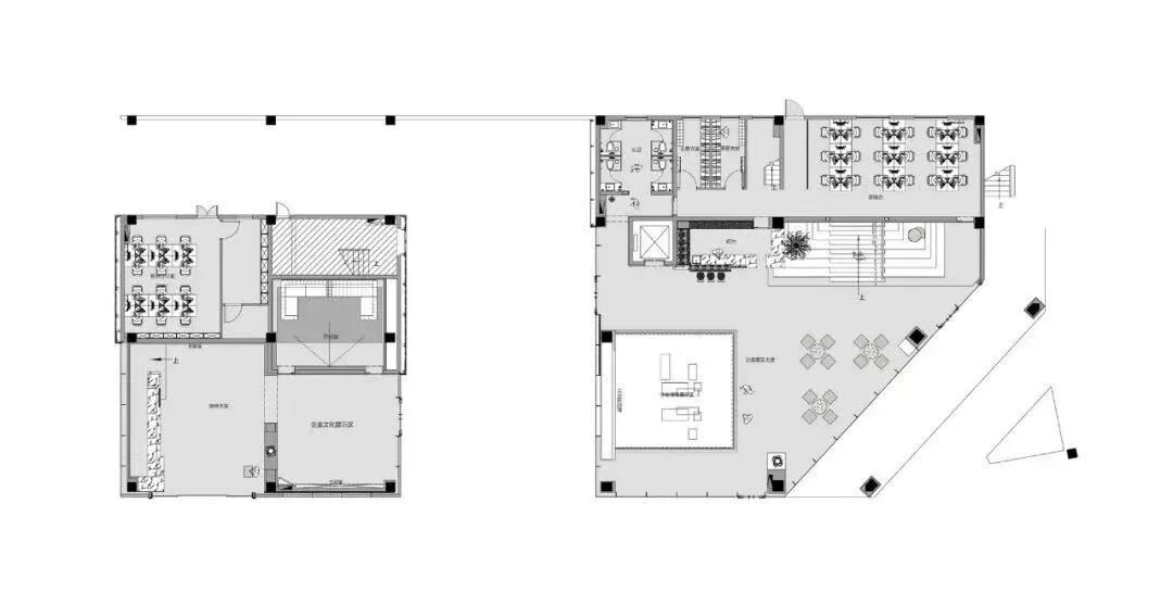
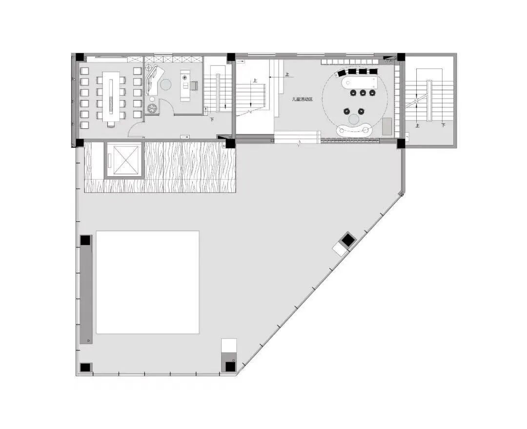
项目平面图


工程资料(含设计、工程、材料)
材料及其应用场景
芝麻灰烧面仿石砖
芝麻灰烧面仿石砖
芝麻灰烧面仿石砖
芝麻灰烧面仿石砖
福鼎黑烧面仿石砖
福鼎黑烧面仿石砖
福鼎黑烧面仿石砖
福鼎黑烧面仿石砖
中国黑光面仿石砖
中国黑光面仿石砖
中国黑光面仿石砖
中国黑光面仿石砖
白色人造石
维也纳斯灰
古铜拉丝不锈钢
复合板材
复合板材
外墙铝板
外墙铝板
外墙铝板
金盘网APP
金盘网公众号
金盘网小程序





