北京阳光城溪山悦别墅样板间
减色、减装饰、减浮华,最后留下的便是本真生活。
- 项目名称:北京阳光城溪山悦别墅样板间
- 项目地点:北京市 北京市北京
- 开发商:阳光城
- 设计参考价:¥4500/㎡
- 销售参考价:¥25000/㎡
- 项目类型:住宅
- 形态:示范区
- 市场定位:高端系
- 设计年份:2020
- 建成时间:2021年
- 风格:现代
- 主力户型:叠拼 144-180㎡ 3室 2厅 3卫
- 设计面积:181㎡
- 容积率:1.17
- 装修类别:毛坯
- 发布日期:2021-08-23
- 最近更新:2021-08-26 12:26
本真生活 自由纯粹

图片来自于网络
自然与现代城市生活之间
要让自然走进室内
需要一股巧劲
这股巧劲是做减法
减色、减装饰、减浮华
最后留下的便是本真生活
/ 筑 色










/ 本与真



因为光线的关照
自然便走进室内形
成有机的关联
身体和心灵在这一刻回归平静
得到舒展



/ 热 爱













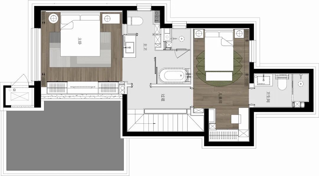
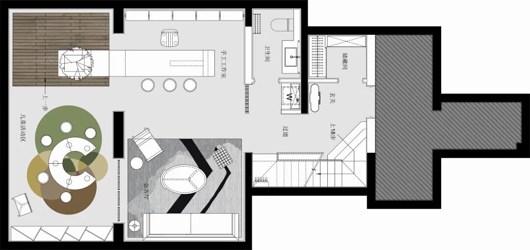
平面布置图
项目全名:阳光城溪山悦别墅样板间
项目地址:北京
软装设计:元禾大千
硬装设计:柯翊设计
设计时间:2020.12
完工时间:2021.04
空间面积:181㎡
甲方单位:北京阳光城
摄影团队:冷風。
工程资料(含设计、工程、材料)
金盘网APP
金盘网公众号
金盘网小程序





