无锡康桥悦蓉园
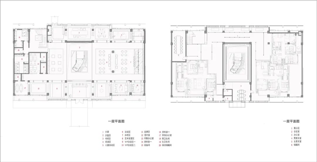
大隐于市,静谧与喧闹一墙之隔。示范区的前场需经由一道影壁进入。项目基地紧邻鸿山路主干道,影壁的设置,将售楼处与外界恰到好处地相隔,于喧闹中取出一块隐秘而不封闭的静地。
- 项目名称:无锡康桥悦蓉园
- 项目地点:江苏省 无锡市江苏省无锡市新吴区鸿...
- 开发商:康桥地产
- 设计参考价:¥35/㎡
- 销售参考价:¥16500/㎡
- 项目类型:住宅
- 形态:示范区
- 市场定位:改善系
- 建成时间:2021年
- 风格:其他
- 主力户型:多层(4-6层) 平层 90-120㎡ 3室 2厅 2卫
- 占地面积:95241㎡
- 建筑面积: 236356㎡
- 设计面积:95241㎡
- 容积率:1.8
- 绿化率:35%
- 发布日期:2021-09-09
- 最近更新:2021-09-10 09:25




项目名称:无锡康桥悦蓉园
建设单位:康桥集团
设计单位:上海睿风建筑设计咨询有限公司
项目地点:无锡市鸿山路与锡协路交口
建筑面积:1672㎡
我们没有投入到冗长的表达中去,也没有迷失在光与影的细节中,而是感到自己面前有一种寻求自我表达的“本质”印象。
——《空间的诗学》
建筑是城市记忆的载体,在读取悦蓉园项目的土地环境时,我们期望能够让设计唤起人们对江南文化的归属感,让建筑承载起城市的记忆。
秩序性、层次性、仪式性是传统规划与建筑空间的核心。在此次营造中,我们采用了纵向叙事的手法,从水平到垂直,于方寸之中叠园成境,彰显中式园林意境。
利用城市绿化带与主体建筑的退避,我们在城市界面上取出了一块世外之地:展示中心需经由一道影壁进入,影壁的设置,将建筑与外界恰到好处地相隔,于喧闹中取出一块隐秘而不封闭的静地。
在悦蓉园项目中,我们不再强化某个建筑的特殊性,而是强调空间与建筑的统一性。在营造空间序列的过程中,我们设计了多层空间层次。
门庭是仪式与礼仪感的开端,大挑檐带来取自传统文化的仪式感,门头之下的围墙与影壁虚实相生,建筑主体自金属镂空屏风中隐约透出,与城市界面交融与共生。
步入前场,展示中心的全貌终于展露。立面设计的元素从吴中地区的城市文脉中获取了灵感,最终选择了江南文化中常见而不张扬的屏风作为手段。从传统纹样中简化而来的金属屏风干净整洁,并无浮华冗杂的设计。
当阳光洒落下来,细密的金属编织出光影徘徊、朦胧细腻的视觉效果,配合内层的大面积落地玻璃,建筑内部似隐似现,形成“隔而不断”的空间体验。前场庭院的方塘静水,加上建筑上徘徊的天光云影,一幅光影交融、古韵新风的画面感便徐徐展现于眼前。
经过建筑主体,展示中心的后场通过大片水景、园林造景,与浅色围墙相互呼应,暗示着江南文化在人们心中最熟悉的形式:水乡与粉墙黛瓦。

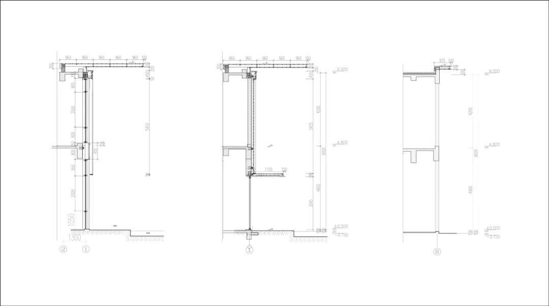
立面上的浅灰色石材立柱长约10m,内嵌金属格栅,主要开间的格栅尺寸3.85m*5.65m,中间再以两道竖挺分成中间宽、两侧窄的三段,整体比例以瘦高为主,与水平向的挑檐形成纵横有致,疏密相间的典雅感。
建筑挑檐使用仿铜铝板,悬挑最大处达3.3米,对现场施工提出了挑战,最终通过大板材和增加龙骨密度以及现场精确施工,呈现出极具张力的视觉效果。当阳光穿过格栅与花格的缝隙,透过玻璃幕墙,在室内落下斑驳的光影,勾起人们心中对于传统文化的记忆。
庭院以水景为主,树木点缀其间,漫步亲水平台,似漂浮水面之上,水的柔美和建筑刚硬的线条碰撞,浑然天成,风雅别致,使得建筑有清新脱俗之感。
景观设计:JAW捷奥国际
室内设计:广州润周装饰设计有限公司
施工图设计:江苏筑博建筑设计有限公司






工程资料(含设计、工程、材料)
材料及其应用场景
仿铜拉丝铝板
仿铜拉丝铝板
仿铜拉丝铝板
仿铜拉丝铝板
仿石砖
仿石砖
仿石砖
仿石砖
超白玻璃
超白玻璃
超白玻璃
超白玻璃
真石漆
真石漆
真石漆
真石漆
金盘网APP
金盘网公众号
金盘网小程序




