柳州旭辉江来
旭辉江来位于“一江两岸,一主三新”的发展片区——柳州阳和板块,距市中心仅10分钟车程,30分钟可直达柳州高铁站、柳州白莲机场。项目地块群山环抱,西眺柳江,环境优美,是进出桂林、南宁的交通要道。
- 项目名称:柳州旭辉江来
- 项目地点:广西壮族自治区 柳州市 鱼峰区静兰桥...
- 开发商:旭辉集团
- 设计参考价:¥70/㎡
- 销售参考价:¥7000/㎡
- 项目类型:住宅
- 形态:示范区
- 市场定位:改善系
- 建成时间:2021年
- 风格:现代
- 主力户型:高层 平层 90-120㎡ 4室 2厅 2卫
- 占地面积:528501.01㎡
- 建筑面积: 528501.01㎡
- 设计面积:528501.01㎡
- 容积率:2.47
- 发布日期:2021-10-18
- 最近更新:2021-10-18 10:56

▲项目区位
旭辉江来位于 “一江两岸,一主三新”的发展片区——柳州阳和板块,距市中心仅10分钟车程,30分钟可直达柳州高铁站、柳州白莲机场。项目地块群山环抱,西眺柳江,环境优美,是进出桂林、南宁的交通要道。

基地位于和源路与检测西路交叉口 — 静兰桥东的桥头堡位置,项目总建筑面积约52万平方米,业态涵盖商业综合体、高层、洋房、叠墅、合院别墅等,通过丰富多样的业态组合倾力打造柳州全新CORNICHE都会墅质生活区。项目中心150米超高层建筑领衔群体塔楼营造优美的城市天际线,打造板块新地标,带来崭新城市风貌。
/ 展示中心选址 /
示范区选址位于4-I-1地块靠近柳江的道路交叉口位置,是最佳且唯一的城市接驳点和人流导入点,也是商业价值最好的位置。前期是售楼处功能,后期是以“艺术、社交、全龄”为核心的体验性商业综合体。如何打造一个极具标示性的城市新形象,既满足商业功能需求,又能增强前期示范区客户体验感,建筑师提出了“立体示范区”的规划设计策略。

▲选址分析
/ 空间塑造 /
项目以现代简洁的手法塑造“立体示范区”的空间形象,首先在城市道路转角的大距离红线退让,为打造小型城市广场创造条件。然后结合功能需求,通过东西两个体块营造L形商业内街,通过斜切扩大开口的处理,进行人流引导。在三层前后用连廊进行围合贯通,并通过观光电梯建立垂直交通体系,使得形体以及功能空间一气呵成,融会贯通。

▲形体生成分析
/ 立面设计演绎 /
自然元素提取
“千峰环野立,一水抱城流” ”——百里柳江绕城而过,别致的地形特征,形成了柳州独特的地理空间文化。建筑师尝试思考用包容性的方式诠释地域、空间和生活美学之间的关联性,并以此作为设计的初衷和构思重点。将柳州山水文脉、溶洞奇观,日月星辰等自然元素与江面游艇的现代时尚设计语汇相结合,打造极具未来感的人居体验环境。

▲游轮
▲溶洞

▲星空
在立面设计中,灵动的柳江水韵成为设计的主旨,将空灵的气质注入设计中,极致的当代设计语言和抽象的艺术美学以独特的方式融入空间,致敬柳江曲线。极具悬浮轻盈感的“舱体”建筑由柱体和通透玻璃幕墙支撑,这也形成人们对于空间的最初印象,豁达的体积,通透明亮的轮廓,将水之柔美贯穿其中。沿着水景缓慢进入室内,流畅的曲线似轻抚大地,人与自然的感知力于顷刻间呈现并相互感染。

▲实景

▲实景
/ 空间体验 /
注重人的感官体验
不同于传统售楼处的功能布局,本案通过前期现场调研,无人机模拟不同楼层高度景观视野分析,最终确定将售楼处的核心功能区——沙盘、洽谈放置于景观视野最好的三楼,将最佳江景资源向前来参观的客户完美展示。同时将屋顶平台打造成开敞悠闲的屋顶CLUB,精致时尚的艺术空间让人联想到游轮的顶层甲板,游客可以360度全景欣赏柳江风景之美。

▲望江示意
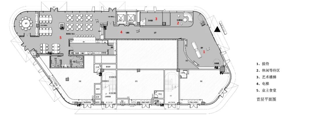
形式追随功能,功能呼应形式。四层空间体量环绕一个共享中庭平面展开,沿江界面设置观光电梯将四层空间上下垂直打通,串通起整个建筑的功能组织与行走动线。

▲空间流线组织
展示中心入口接待区放置在首层,结合首层架空空间、彩色变化景观水帘,吸引并引导人流步入接待区。通过垂直观光电梯直达三层沙盘洽谈区与四层屋顶CLUB,样板间放置在三层。从入口起始,通过建筑景观与室内空间的不断场景转换丰富了行走的感官体验。


/ 建筑表皮细部 /
体现精工品质
建筑设计不仅是空间的艺术,更是时间的历练。建筑设计需经得起时间的考验,并兼顾建筑细部、空间尺度、实用性与美观的统一。

▲剖面构造
为了实现完美的落地效果,在设计中对节点细部不断精雕细琢——为了达到最好的观景的视线通透性效果,三层屋面采用反梁双层板做法加大洽谈区观景高度;梁下金属格栅造型采取悬挂做法,完美解决首层玻璃幕墙高度和室内的通透性; 首层幕墙底部收口做杯口设计,外包铝板与室内完成面实现平整过渡; 暗藏于铝板造型线条上的灯带,既兼顾了照明需求,又完美过度银灰色与深灰色铝板的交接,成为建筑立面的一部分; 翻边做后退处理以解决线脚高度比例不变的落地效果。



▲吊顶穿孔铝板示意
铝板与玻璃幕墙分割精准对齐,整齐划一,强化了立面效果,细节所到之处体现精工品质。

▲立面实景图
/ 建筑泛光 /
锦上添花的一笔
整个项目的立面照明系统,通过采用4000K的柔性灯带与室内3000K的色温对比来加强建筑夜间的视觉感受,奠定整个建筑的基调。
疏密渐变、大小不一且又有规律的穿孔铝板位置,通过LED光源来营造一个星光主题幕布,与彩色变换的水帘照明结合在一起,共同打造浪漫温馨的视觉焦点,既兼顾了照明需求,又成为建筑立面的一部分。


/ 落地还原度 /
精确还原,所见即所得
通过对整个项目的全过程的精细化把控,材质、工艺与细节的细致推敲,落成后的售楼处从整体效果到细节比例都对原来的效果图实现高度还原,达到了真正意义的所见即所得。
柳州旭辉江来就像驶入江畔的一艘“游轮”,区域新的精神地标,正吸引大量前来欣赏的游客。正如立意之初所期待的,“以健康、自然迎接美好生活”的价值观点燃未来生活的激情,在百里柳江的青山绿水中开启柳州现代生活新方式,引领新的时代。 ▲一层平面图 ▲二层平面图 ▲三层平面图 ▲屋面层平面图







金盘网APP
金盘网公众号
金盘网小程序





