- 项目名称:苏州万科·四季星光售楼处
- 项目地点:江苏省 苏州市 相城区
- 开发商:苏州万科
- 设计参考价:¥1500/㎡
- 销售参考价:¥55000/㎡
- 项目类型:综合楼盘
- 形态:示范区
- 市场定位:高端系
- 建成时间:2021年
- 风格:新亚洲
- 主力户型:高层 平层 90-120㎡ 3室 2厅 2卫
- 设计面积:1100㎡
- 容积率:2.5
- 发布日期:2021-11-29
- 最近更新:2024-07-23 17:30

售楼处/Sales Office

序 | Preface
日月星辰的光辉聚合成为空间的设计主线,流畅的线条勾勒出时空的转换,起承转合之间,折射出新生活的未来之境。

△设计概念
本案设计灵感基于对浩瀚星际的憧憬与好奇,以超现代简约美学构造出星空之境,为人们在繁忙的城市,开辟一处充满未来感的美学空间。

△设计概念
设计上主要通过色彩及材质丰富的层次来营造宁静与自然,舍弃并打破传统售楼处紧张沉重的商业设计,让到访和洽谈变得自由惬意。

△建筑外立面

售楼处/Sales Office

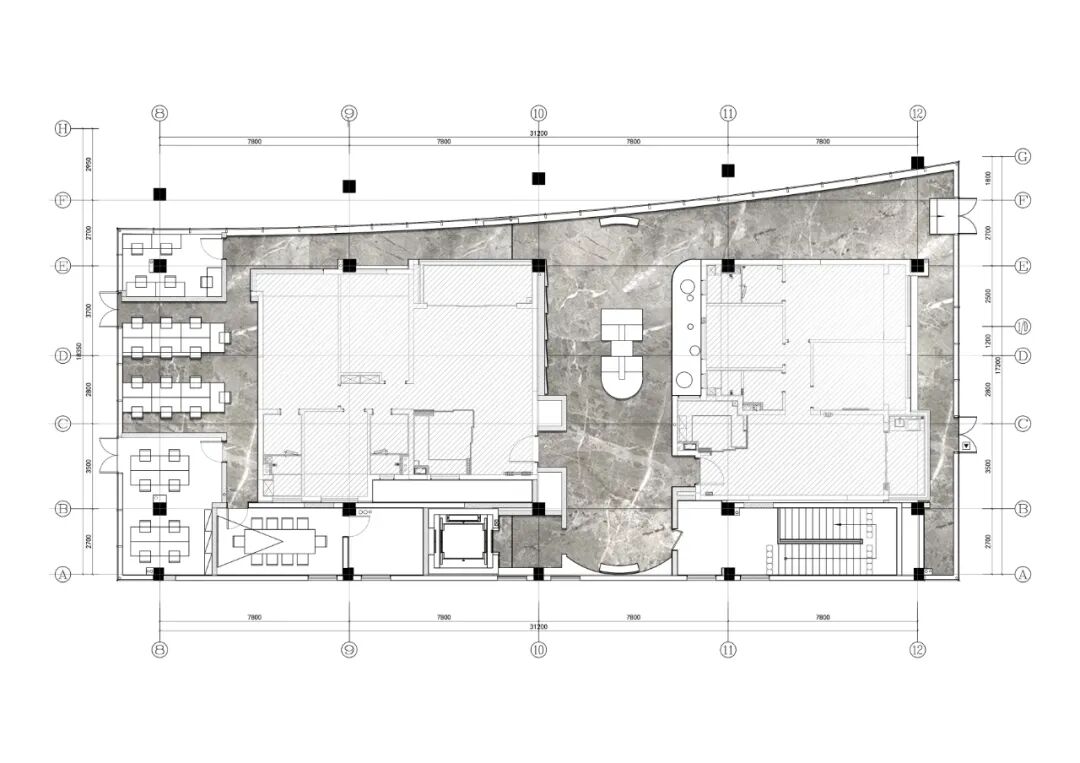
△一层系统分析图
接待大厅
- Reception Hall -
空间以“星际漫游”为主题,优越纵深与宽阔层高之上,迎面而至的光影斑驳洒在墙上。入口以充满未来感的星际熊一字排开,以此来渲染出接待的仪式感。抬头仰望,可见繁星点点,意境从抽象渐渐具象成形,此时已有别样心境。

接待台幻彩玻璃与背景墙的发光水泥材质相呼应,地面的深藏灯带烘托出置身星河的浪漫氛围感受。游离于繁华与静谧之间,却被城市灯火所包围,⽽线条,自然而然地流淌,将星空轻轻托起。


星际漫游I星际熊
我来自遥远神秘的星球,汇集宇宙能量而存在;我在浩瀚的星际间穿梭,探索着世界的丰富与无限;我变身不同颜色的能量,乘坐进〖能量胶囊〗等待着与你不期而遇。

沙盘区
-Model Area -
诗意的星轨是沙盘区的灵感来源。流畅的线条、雅致的色彩给人以纯粹与飘浮之感,将沙盘区打造成一座漫游于璀璨星河的“空中岛屿”。

沙盘采用液态金属营造出流动美感,顶面的艺术漆悬浮吊顶轻盈灵动,好似盘旋在岛屿上空的云雾,又像飘浮在太空中的行星轨迹。

水吧区
- Bar Area -

△材质分析图
水吧区使用摩登感十足的金棕色为主色调,背景材料使用了液态金属,一种前卫的未来感扑面而来。整体依然保持着曲线柔和的结构造型,在灯光的映射下熠熠生辉,看似个性、独立,却又与整个空间协调统一。

洽谈区
- Negotiation Area -
弗洛伊德认为:"体验是一种瞬间的幻想:是对过去的回忆——对过去曾经实现的东西是追忆。也是对现在的感受——先前储存下来的意象显现。"

深入洽谈空间,依然延续星空的设计,强调角色的专属性带入场景。独创的异形立柱设计增加了空间的代入感。

色彩上崇尚简洁,焦糖色的点缀与柔和的灯光相互交映,散射着柔和的气氛,精致的空间倍感静谧。

儿童区
- Children's Area -

△分析图
星空,是大自然赐给人类最好的礼物。

那儿有我们的近邻——月球;那儿有宇宙中的明灯——恒星;那儿有宇宙的流浪者——彗星。

受日落的启发,用丰富的材料、柔和的色调和灯光,营造独特的儿童空间,光线的拱形贯穿始终。





其他区域
- Other Area -
每一个当下,都向往着月与星辰的未来,掬水在手即可见云上流光,用日月星辰的光辉开启美好生活哲学的追随。



△二层系统分析图
平面图
Layout plan



样板房/Model Room
01.
幸福的温度
这个时代,真正令人心动的是对生活方式的共鸣,对品质生活的回响。生活空间也不再是只追求表面的华丽,而是开始探寻那些平凡生活中的不凡,空间尺度中的温度。在我们的设计中,您可以看到更好的生活方式,并感受到室内的温暖。


客厅空间在整体上主要选用的是温暖的灰、棕色调,没有其他过多的色彩,这让室内空间看上去清新自然又简洁,为空间打造出一种高雅又简约的气质。


大面积的落地窗,一定程度上提升了整体空间的质感,把空间和自然融合在一起。线条干净利落,再加上室内摆放着十分精致的家具,可以给人带来一种非常惬意的感受,明亮又舒适。


我们践行了将厨房和餐厅作为同一空间的设计理念,创造了一个开放的厨房区域。在视觉上,它让空间得到了更好的利用,大理石地板和深色系家具构成了一个视觉上的呼应。


简约流利的线条与黑白灰色调相结合,展示出整个空间的几何美感。


卧室的床品依然选用了暖灰色调,柔软又细腻,看上去舒适无比。舒适惬意的飘窗和白色的薄纱搭配在一起,让室内的光线看上去既明亮又柔和。


男孩房以酷感十足的篮球元素为主题,蓝色和橙色的碰撞带来极富张力的视觉冲击,通过灯光的加持,营造出一种活力又温馨的空间氛围。
平面图
Layout plan

02.
动人心弦的家
我们所追求的空间不仅看上去很好,而且感觉也很好。建筑变得深思熟虑,极简主义获得柔软,视觉物质具有触觉的品质。

客厅以天然有机的材料和极简朴实的设计理念,让整个空间氛围显得温暖而有格调。素简淡雅的色彩散发出平静的气息,让人不由的彻底放松下来。


整体布局简洁舒适,没有什么累赘的装饰,展现出现代极简主义里面的写意之美。



开放式的餐厅和客厅相互结合,在空间上变得更加开阔,整个空间变得更加一体化。

主卧依然保持着简约、现代的风格特征。浅灰的窗纱和寝具带来了高级的质感。床头和空间的整体风格很好地融合在一起,打造出充满温馨感的休息空间。

儿童房以KAWS与芝麻街潮牌公仔为主题,彰显孩子独特的个性,活泼奔放的色彩渲染炫酷而不失童真的空间氛围。

亲子室的设计让家人间的情感连接有了新的纽带,开放性的空间之下蕴藏的是紧密的感情,一家人嬉笑打闹的日常,感受空间因人而生也无可取代的美好温度...
平面图
Layout plan

项目信息
Information
━
项目名称丨四季星光售楼处&样板房
开 发 商丨苏州万科
甲方团队 | 徐珂/赵君晔/胡颜希/张彧恒/鄢然
项目地点丨江苏 苏州
项目面积丨1100m²/116m²/100m²
竣工时间丨2021年11月
室内设计丨域正设计
硬装团队丨吴昊/王政/郭林生/马英博/肖俊/唐凯文/刘颂/
王凯华/乔玲玲/戚瑞麟
软装团队丨赵艳/倪士妮/王早/张馨月
项目摄影丨莱普斯摄影空间
金盘网APP
金盘网公众号
金盘网小程序





