云栖奇岭
在杭州西部桐庐一片山水丰饶、丘陵叠嶂的场地中,设计师因山而营,通过打造人居与环境充分互动的未来生活场景,再现现代都市语境下的隐逸景象,回应根植于人们心底的山居情结。
- 项目名称:云栖奇岭
- 项目地点:浙江省 嘉兴市 海宁市金西路与儒闾路...
- 开发商:众安房产
- 销售参考价:¥24700/㎡
- 项目类型:别墅
- 形态:大区
- 市场定位:改善系
- 建成时间:2021年
- 风格:现代
- 主力户型:多层(4-6层) 复式 180-210㎡ 4室 2厅 4卫
- 占地面积:70000㎡
- 建筑面积: 140000㎡
- 容积率:1.1
- 装修类别:毛坯
- 发布日期:2021-12-01
- 最近更新:2021-12-01 16:04


从古至今,烙印在国人肌骨中的对山居的情意结始终未曾改变——它象征着“仁者乐山”的端方仁厚,象征着“采菊东篱下”的怡然自得,象征着“空水共氤氲”秀美空灵。山,有着丰富的精神内涵、有着远离喧嚣的宁静,也成为得以寄情于斯畅叙内心的载体。

⊙ 桐庐印象©天阳
在杭州西部桐庐一片山水丰饶、丘陵叠嶂的场地中,设计师因山而营,通过打造人居与环境充分互动的未来生活场景,再现现代都市语境下的隐逸景象,回应根植于人们心底的山居情结。

⊙ 群组山居效果图
02
塑场·野
山居老树秋还青,山下渔舟傍晚汀。
一笛月明人不识,自家吹与自家听。
项目场地位于浙江省杭州市西北部桐庐县境内的一个小山头上,周边既被富春江、大奇山、云山九里国家森林公园环抱,亦有高速公路与轨交将之与杭州市中心相连,与都市的喧嚣保持着恰到好处的距离。

⊙ 大区位

⊙ 小区位
●三个难题:
彼时正值浙江土拍市场竞争激烈之际,业主在高价拿到地块时立刻邀请我们去现场踏勘。虽然桐庐山清水秀,民宿遍地,但项目基地处在城市末端,与金西村的农居相连,四至的界面杂乱无需,如何在杂乱的环境下去塑造豪宅的体验?——这是难题之一。

⊙ 场地四至界面
基地用地面积约为6.9万平方米,南北向与东西向均超过30m的最大高差可以提供给身处其中的人们“横看成岭侧成峰”的空间体验,如处理得当,能展现给用户相较于一般山地项目更极致的山居氛围;但也在景观塑造、交通流线等技术问题上给建筑师形成很大的制约,能否以适宜的手法梳理场地高差,发挥场地特色?——这是难题之二。

⊙ 场地原始高差
最后一个难题来源于经济维度,在利润空间的挤压下,1.1的容积率首选一定是叠拼的产品类型,这样的选择必然代表着低容高密度的楼栋分布,景观与空间场地有限,建筑师还需要满足开发象限的各个要素包括溢价与货值、产品力、成本控制、进度周期等等……带着各种各样的约束,如何产出个不仅满足地产开发象限又能体现设计师情怀的作品?——这是难题之三。

⊙ 地产逻辑下的设计导则
●破题之路:
三个问题其实指向了两个解题思路,即“设计本源”与“售楼策略”,首先是总图规划与产品,空间有格局,货值有保证,产品有溢价,成本有控制,这是我们需要达成的理性目标,建筑师顺应山势,沿南北方向将场地分为三个高度不同、相对独立的组团,从而消解东西向高差。

⊙ 高差处理原则
三个组团各自将南北向高差消化为层层台地,不仅合理减少山体的开挖回填,更塑造出层层为园、处处皆景的场地格局。而沿山势逐级抬升的建筑主体也得以用一种相对谦卑的姿态嵌入场地。

⊙ 规划生成
贯穿基地的南北向归家礼序景观主轴提供了从城市道路到山野隐居的场景转换,形成主要归家动线的同时串联起六重节点空间,让住户在归家的同时通过一层层具有仪式性的空间节点完成从尘世到山林、从喧嚣到隐逸的心理体验过渡。
由组团间的环状公共道路与各组团轴线延展出的”几”字形的社区生态绿化带,与归家主轴组成一组三叉戟形状的核心公共空间带,加强了自然景观向社区的渗透。

⊙ 整体鸟瞰图

⊙ 规划结构图
层层叠落的台地组合也创造了极大的产品溢价空间,利用前后排的错层,塑造出的全明地下室空间既可以满足常见的地下功能,又可以同时拥有室外庭院,在不计容的条件下有效提升了客户的使用感受。

⊙ 整体剖面结构图
我们解题的第二个思路是“售楼策略”,规划解决的是整体设计策略与产品适配性问题,而示范区则是设计本源的集中体现。尤其在本项目中,交通可达性不便利、周边界面环境乱、山地项目开发周期与高品质呈现的经济冲突等重重矛盾使得示范区的营造需要更全面的筹谋,建筑师最初想要描绘的理想生活范本,往往由于成本、工期等等因素而未能实现,但在本项目里,我们与业主在重重压力之下,依然形成了一个完整的示范区画面。
●连点成线,画线聚面,外挡内聚,实景生活:
向左滑动查看更多
⊙ 产品分析

⊙ 总体流线图

⊙ 示范区整体鸟瞰图
与常规示范区的开门见山策略不同,本项目的流线是先从社区体验开始,最后再进入销售空间。社区的主入口以宝格丽风格的门头气度格调率先把整个小区的场域空间界定出来,并且承担的小区接待的功能,两侧七米高的挡土墙预留了绿化退台空间,也减少了对行人的压迫感。

⊙ 社区主入口实景
进入主入口后的人们透过一个水院可见会所的泳池,水帘的细微声响也是对泳池形成了声音与形式的耦合。

⊙ 水院、水帘与社区门厅
到访者的动线跟随水院与泳池的引导拾级而上,通过自动扶梯到达会所前院,豁然开朗的景观场与远方山景的呼应,释放到访者前序进入时沉稳收敛的情绪。

⊙ 入口通向小区会所

⊙ 会所前院实景

⊙ 会所入口实景
会所的平面布置利用了山地地下室空间,以健身、spa、私宴等现代中产人群所常用的功能为主铺排,最终在实景呈现的星空泳池达到了空间氛围的高潮。所见即所得的场景感即是参与感,建筑师在整个前期建筑平面功能的布置中稳定空间体态、设置了空间节奏,是对建筑、景观、室内一体化的有益实践。

⊙ 会所平面布置

⊙ 星空泳池实景©天阳

⊙ 泳池望向室外庭院

⊙ 会所后院实景(通往景观中轴)©天阳
到访者的行径路线离开会所后,通过带形的景观带,到达实景样板房,通过178与203两个产品段的设计,具体感知项目的品质。最终通常以功能为主的售楼处在建筑师别出心裁的设计中,成为了整个示范区流线首位的高潮。有别于网红场景的临时渲染效应,彻底以客户为中心,以场景营造为中心,创立了一种全新的售楼体验。

⊙ 带形景观带与住宅的关系
售楼处本身的概念也服务于整个山地大区,“长出来的房子”是整个售楼处的核心理念,可以有一定的形象,但不要过于突兀,盒子的堆叠要适应场地的脉络。

⊙ 售楼处设计概念

⊙ 售楼处设计生成

⊙ 售楼处平面布置图

⊙ 售楼处实景鸟瞰

⊙ 售楼处正透实景

⊙ 售楼处庭院内景
整个示范区尺度各异的开放空间与主题广场分布其中,团状的开放空间与带状空间轴线序列彼此转换,形成江南古典园林中常见的“奥旷”对比关系,不仅在适宜的尺度里营造更丰富的山居景观,更将使用者的“行径”与“停留”行为有机编织,从而存蓄社区活力,鼓励自发性活动与社会性活动的产生,在山地的线条中铺陈一张邻里友好活力密布的底色。

⊙ 示范区群组实景
03
筑舍·冶
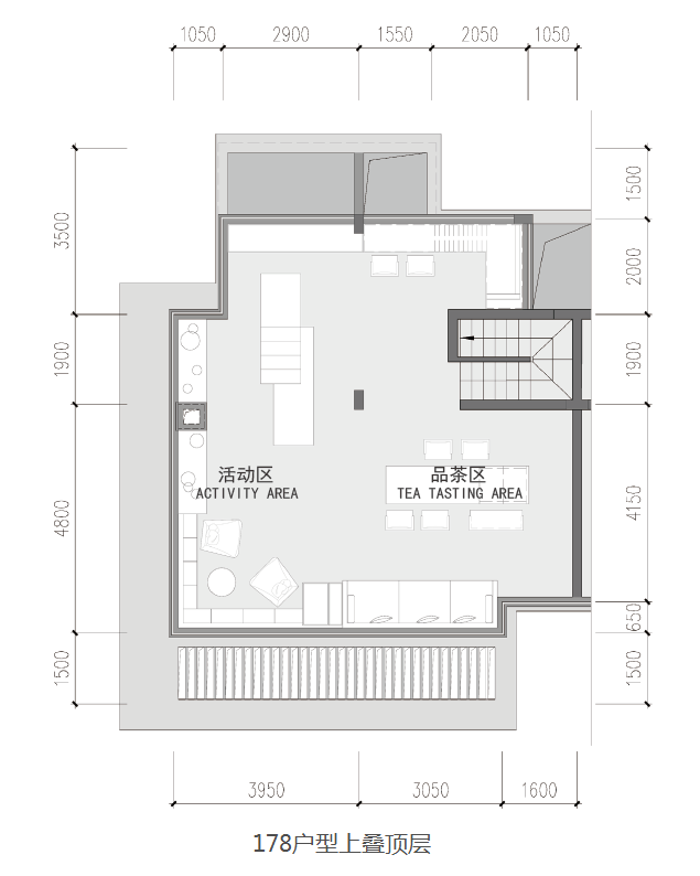
户庭无尘杂,虚室有余闲。 从故事线到规划,建筑师始终围绕于“山居”概念,所以建筑师认为在山居的生活模式中,人与自然的关系具有比“观览”更高的亲密性和丰富层次,甚而彼此相融互为部分——自然伴随生活、融入生活、组成生活,而人平视自然、参与自然,在此过程中得到自我的释放与心性的冶炼,或许就是山居最核心的意义。居住的本质就是生活,所以好的产品就应该体现生活的场景。 ⊙ 效果图描绘的山居意向 ●立面形象与细部: 云栖奇岭项目从建筑形象设计与户型两方面着手,建筑形象设计中,设计师优先考虑将室内空间与外部景观的互动作为设计的首要条件,让景色从单调的“装饰品”转变为四时各异的生活基调。以“环山秀色,横框取景”为概念,建筑立面成为室内空间的取景框,而“框”元素亦成为形式母题,通过层层嵌套的手法丰富视觉层次。建筑造型成为室内外空间互动的窗口,而非仅仅成为手法和材料堆砌的容器。 ⊙ 立面设计概念 ⊙ 立面设计构成 在玻璃与浅灰色及深灰色仿石铝板等材质组成的基调中,仿木铝板的使用平添几分自然与柔软,呼应周边环境。不同材质间的对比,使建筑与环境之间形成丰富的对照关系,让建筑成为生长自山中的新轮廓。 ⊙ 178产品南立面整体形象 ⊙ 178产品北立面整体形象 ⊙ 178产品出入口形象 ⊙ 178产品细节设计 ⊙ 203产品南立面整体形象 ⊙ 203产品北立面整体形象 ⊙ 203产品细节设计
久在樊笼里,复得返自然。











●产品设计与场景:
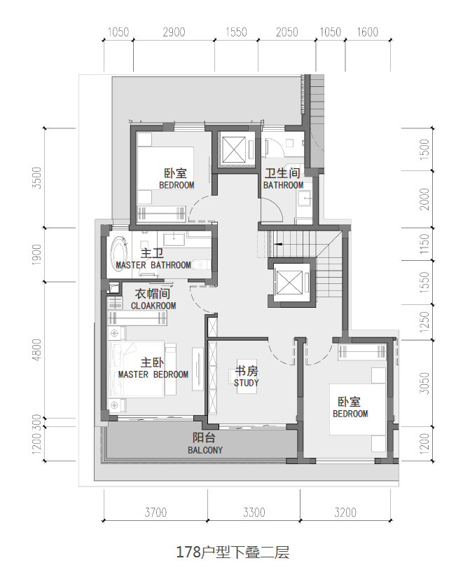
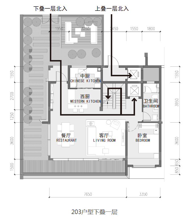
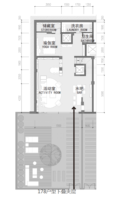
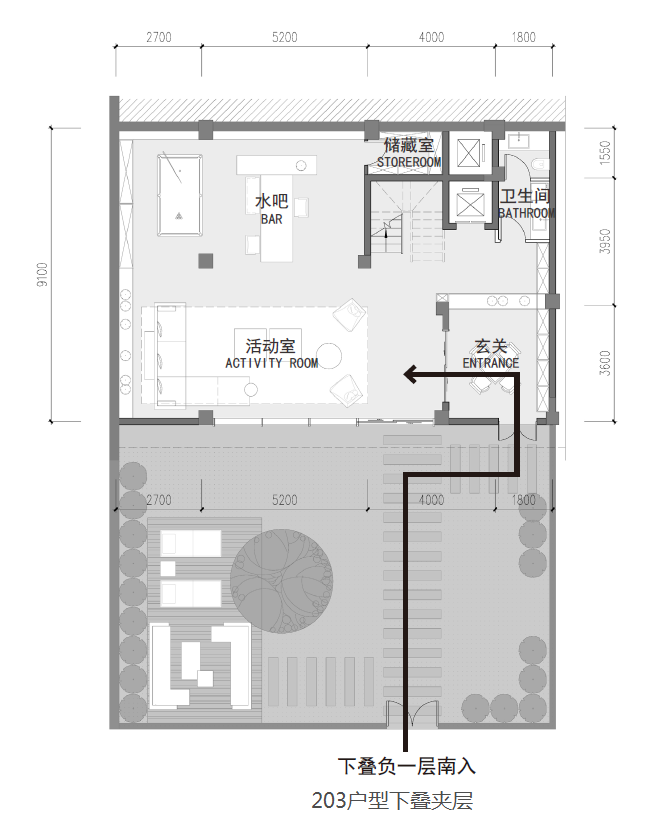
相比于其他同类型产品,项目通过充分利用丰富的场地高差关系,在保证叠墅下叠产品享私家庭院、上叠产品享星空露台的前提下,别具一格地通过设置双首层入户庭院赋予原本价值较低的中叠产品以高溢价,并做到100%户数有天或有地,在充分利用土地容量的情况下,打造类联排式的居住感受。 ⊙ 203产品剖透视图 向左滑动查看更多 ⊙ 203产品平面 ⊙ 178产品剖面关系图 向左滑动查看更多 ⊙ 178 产品平面 ⊙ 203产品客厅与庭院的互动 ⊙ 203产品客餐厅洄游空间 ⊙ 203产品地下室挑空空间 ⊙ 178产品庭院空间 将叠墅产品的居住感升级至联排标准,得以让自然更彻底地渗透入每一户,通过左右双向开门电梯,独门独户私家电梯厅,以及户内上下层动静分区的设计让生活在其中的人拥有一方私密性极强的、得以畅叙内心的小天地——纵使时移世异,自古以来文人墨客所追求的隐逸与寄情山水最终以一种更现代的模式复刻于21世纪的生活场景中。 ⊙ 顶层阳台“望山” 居于山琊,揽胜野趣,陶冶心性——以现代山居为出发点,在尊重自然和保护生态的原则下,云栖奇岭最大化利用周边自然资源,用当代的手法重新演绎人居与自然的关系,将传统的空间审美偏好融入时代环境转译,从而为桐庐打造一处让人在精神上可以获得饱满力量的人居产品。






金盘网APP
金盘网公众号
金盘网小程序























