海信·君澜
繁华金线顶上,君澜匠筑现代主义风格建筑,层层筛选高档石材,辅以毫米级精工匠艺,干挂石材外立面,镌刻跨越时空的立面美学,成就无惧时间的海岸经典。
- 项目名称:海信·君澜
- 项目地点:山东省 青岛市 崂山区 崂山海口路77号
- 开发商:海信地产
- 销售参考价:¥75000/㎡
- 项目类型:住宅
- 形态:大区
- 市场定位:高端系
- 建成时间:2021年
- 风格:现代
- 主力户型:高层 平层 144-180㎡ 4室 2厅 2卫
- 占地面积:99700㎡
- 建筑面积: 156700㎡
- 容积率:2.4
- 装修类别:精装修
- 发布日期:2021-12-03
- 最近更新:2021-12-03 18:54


海信·君澜即将序启风华,建面约220㎡美学样板间,同步华幕绽放,脚步所至,目光所及,不负一城仰望!
▲威海海信君澜形象图 繁华金线顶上,君澜匠筑现代主义风格建筑,层层筛选高档石材,辅以毫米级精工匠艺,干挂石材外立面,镌刻跨越时空的立面美学,成就无惧时间的海岸经典。 ▲青岛海信君澜实景图 围绕威海高净值人士需求,海信·君澜深研“归家即度假”的社区场景,为圈层营造特色度假、健康休闲、生态人居三合一的生活方式。 精琢约1.8万㎡园林胜境,营造重品质、享时光的诗艺美学情境。 ▲青岛海信君澜实景图 以现代美术馆式手法,铸归家大堂,干挂石材外立面,甄选缅甸白玉……让归家充满仪式感,更充满艺术享受。 ▲威海海信君澜效果图 近1000㎡泛会所空间,集运动、健身、休闲、娱乐、品茗等多功能于一体,更规划尊崇私享泳池,真正诠释“度假是归家的开始”。 ▲青岛海信君澜实景图 居住的本质,始终是追求生活的舒适与质感。为此,君澜层层甄选全球精妆品牌,以国际美学格调,营造契合高净值人士的艺境质感生活。不惜成本,定制现代简约与新古典双风格样板。 现代简约风格品味沉静内敛,尽显生活质感。 ▲威海海信君澜样板实景图丨点击查看大图 新古典主义风格,沉稳的高级灰调搭配高品质软装,演绎大家风范。 ▲威海海信君澜样板实景图丨点击查看大图 嵌入式冰箱、嵌入式蒸箱、烤箱等均选用欧洲高端艺术家电品牌——古洛尼gorenje,作为连续14年获得德国“红点奖”的品牌,古洛尼,以美学新主义,为家人创造充满灵感的厨房生活。 ▲示意图 经典u形厨房布局,烹饪动线流畅,配置带有上滑轨道的玻璃平移门,兼顾亲情互动的同时,阻隔油烟的侵扰。 ▲海信依云小镇实景图 水龙头选用百年厨卫领先品牌 ——科勒,同品牌台下盆,便于台面卫生的清理,又避免漏水导致柜内滋生细菌,同时抗氧化腐蚀,可放下大件厨房用品,清洁无忧。 ▲示意图 卫浴空间内,花洒选用有“花洒界的爱马仕”之称的汉斯格雅,水量稳定且舒适性高,尽享沐浴时光,再配备特设的淋浴区壁龛,提高空间利用率,瓶瓶罐罐触手可及,盛放每一天的精致。 ▲海信依云小镇实景图 欧洲皇室御用品牌,“卫浴界之劳斯莱斯”——杜拉维特。海信·君澜,甄选杜拉维特品牌面盆及浴缸,舒享优雅沐浴时光。 ▲示意图 此外,马桶选用有三百余年历史的塔尖品牌——唯宝,尊享品质生活。自1748年创立以来,德国唯宝始终引领全球陶瓷行业的发展与变革,跨越四个世纪,历经四次工业革新,依然以行业推动者的态度不断研发与创新,为行业树立更高标准。 ▲示意图 君澜同层排水系统以私密性、灵活性、静音等六大优势,为高净值人士专属定制静音生活。 ▲示意图 系统窗选用兴发品牌,该品牌拥有超过1200余项国家专利。兴发系统窗成本约为普通窗的两倍,保温性、抗风压性、气密性是普通窗难以企及的。 此外,兴发系统窗独有下沉式隐藏排水设计,让排水更顺畅;隐藏式五金设计,让整体更美观大气;软性护角设计,避免老人孩子磕碰……真正从细节呵护品质生活。 ▲示意图 君澜采用瑞博恩新风系统,一年四季,哪怕是雾霾频发的冬天,或者是夏秋季花粉高发期,居于家中仍可享受自然空气的清新。 ▲示意图 中央空调精选海信顶级家用中央空调,产品高效节能,综合能效值远超国家一级能效标准;采用全直流变频技术,运行稳定,振动小、噪音低;同时采用冷媒散热技术,在夏季高温时,制冷能力更突出。 ▲示意图 室内所有主要开关皆甄选罗格朗品牌,其中,玄关一键开关,出入时可一键关闭所有室内照明(除冰箱、网络之外),让居者轻松出门,减少生活中来往折返“强迫症”。 ▲示意图 将空间还给生活,以美学对话圈层,从至臻至微的细节处,营造更契合高净值人士的奢雅生活场景。 君澜,不远万里,层层甄选全球精妆品牌,力求满足圈层对高品质生活的追求; 君澜,不负初心,始终秉持对美学与品质的不懈追求,焕新未来理想人居; 君澜,忠于匠心,精铸海岸之上美学样板间,更不惜重金,云集全球名品,只为与您初见!





















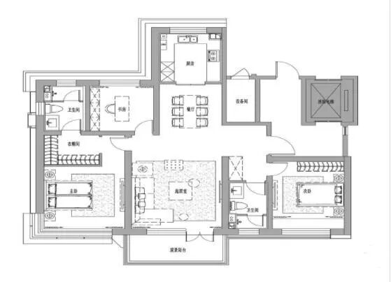
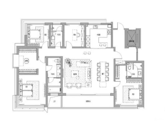
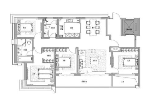
项目户型:

170平F户型

175平E户型

223平C户型

200平D户型

263平A户型

230平B户型
金盘网APP
金盘网公众号
金盘网小程序


