广州景业·珠江新月
顺着滚滚珠江水遇见珠江村,气势恢宏的集装箱吊阵、蕴含广府韵味的建筑讲述着这个村落600余年的发展。对传统岭南文化进行解构重组,当城市发展将“城市更新”推至历史命题之上,黄埔区为旧改画下蓝图,珠江村也迎来了旧城更新浪潮。
- 项目名称:广州景业·珠江新月
- 项目地点:广东省 广州市 黄埔区黄埔区
- 开发商:景业名邦集团控股有限公司
- 设计参考价:¥1000/㎡
- 项目类型:综合楼盘
- 形态:示范区
- 市场定位:高端系
- 设计年份:2020
- 建成时间:2021年
- 风格:中式
- 设计面积:1380㎡
- 容积率:1
- 地块:开发区
- 地貌:平地
- 发布日期:2022-03-24
- 最近更新:2022-06-13 10:19


得閑去茶樓
嘆個一盅兩件
睇下報紙,吹下水
再約埋班親戚朋友
去睇爬龍舟
時代在變,情懷未變 ///


“珠江新月,故梦寻龙”,触及这一池镜水、这一龙舟,往日龙舟赛的盛景即将呼之欲出。珠江水、珠江月,千年前照见古人,千年后照见来人。而珠江新月展示中心凝固了的现代与广府元素,让我在这里看到了珠江的过去与未来。



共續
/ 黃埔記憶 /
GUANGZHOU·HUANGPU
黄埔
一块历史悠久、人杰地灵的宝地。
早在一千多年前,黄埔就成为世界著名的埠,曾几何时,世界各国的商船、鸦片战争的硝烟、近代战争的炮火都在黄埔烙下深深的印记;闻名世界的黄埔军校一代风云人物都在这里留下了非凡足迹。



敘說月下珠江的記憶
見證新舊更叠間的萬千變化




老城在煥新,珠江新月
見證著歷史對於建築的饋贈
對場所精神的敬畏與念念不忘


现代人造大都市
流光溢彩且脆弱

青砖 瓦片 麻石
精神的記憶與感受力量
在自然原材料中被喚醒



抽象水花艺术装置
生动诠释着
“ 水不在深,有龙则灵 ”


效果圖
// Effect Picture //




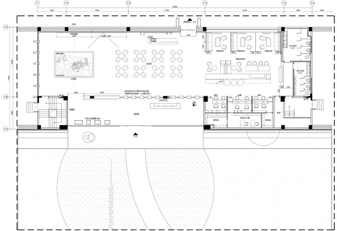
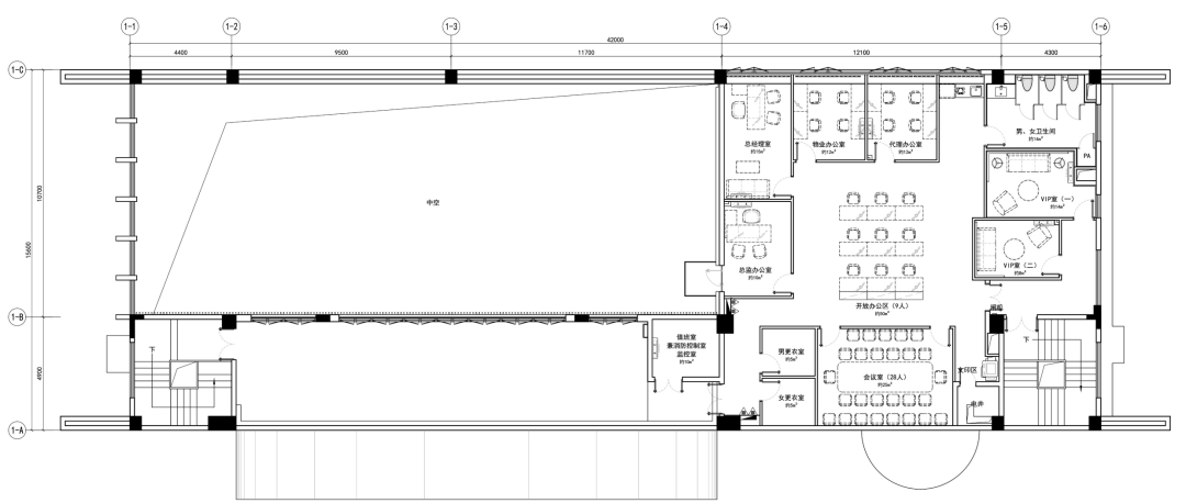
平面圖
// Floor Plan //


工程资料(含设计、工程、材料)
材料及其应用场景
木材
木材
木材
木材
瓷砖
瓷砖
瓷砖
瓷砖
不锈钢
不锈钢
不锈钢
不锈钢
不锈钢
不锈钢
金盘网APP
金盘网公众号
金盘网小程序


