财富盛世 · 曼哈顿生活
Manhattanlife·曼哈顿生活,悠享生活里的浪漫时光,清晨迎接第一缕阳光轻抚,夜晚将星辰大海映入眼眸,让生活惬意无限延伸,实现业主对理想生活的追求。海湾湿地畔,盛世好时光,直面一望无际的海湾景致。
- 项目名称:财富盛世 · 曼哈顿生活
- 项目地点:广东省 茂名市 电白县水东镇海滨大道...
- 开发商:茂名富晟投资有限公司
- 设计参考价:¥1200/㎡
- 项目类型:住宅
- 形态:示范区
- 市场定位:高端系
- 建成时间:2020年
- 风格:现代
- 主力户型:高层 平层 210㎡以上 4室 2厅 2卫
- 设计面积:560㎡
- 容积率:1
- 装修类别:精装修
- 发布日期:2022-03-24
- 最近更新:2022-04-02 11:47


静谧低调
彰显品质
MANHATTAN LIFE

东西方空间风格独特交融贯穿
将奢华生活中和谐与舒适的概念
提升至新高度
EAST MEETS WEST
THE CONCEPT OF HARMONY AND COMFORT
IN LUXURY LIVING
ELEVATE TO NEW HEIGHTS

利用影调、线条、对比、明暗反差等塑造空间效果
简单却令人产生无限遐想
SIMPLE BUT MAKE A PERSON PRODUCE
INFINITE DAYDREAM


大理石的肌理与木饰面完美契合
柔和灰调
靛蓝点睛
低调又见奢华
SOFT GREY WITH INDIGO BLUE
LOW-KEY AND LUXURY


客餐厅相连贯通
落地窗开阔明朗
将自然景色最大限度的纳入视野
THE NATURAL SCENERY
MAXIMIZE YOUR VISION


黑白灰运用于整个空间
墙面、床具、窗帘、画作
在时尚别致中
暗藏着迷人细节
CHARMING DETAILS
ARE HIDDEN IN FASHIONABLE CHIC


时尚别致的书房中
金属感充斥着整个空间
简约之中传递理性与质感
IN CONTRACTED
TRANSMITTING RATIONALITY
AND SIMPLE SENSE




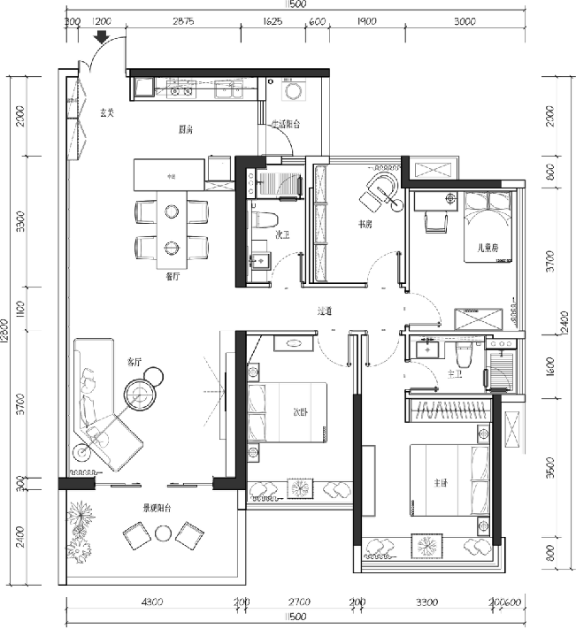
- 平面图 -

金盘网APP
金盘网公众号
金盘网小程序


