创基 · 丽江国际花园
十里增江画廊,荔湖新城中轴心,观赏增江一线壮阔江景,自然与繁华的完美融合,一杯茶品人生。水景园林尽收眼底,不仅是一种超自然的人生境界,更是一种美好的心情,一种长久的精神享受。生活的自由,一城的繁华......
- 项目名称:创基 · 丽江国际花园
- 项目地点:广东省 广州市 增城市景观大道5号
- 开发商:广州市创基房地产投资有限公司
- 设计参考价:¥1200/㎡
- 销售参考价:¥28000/㎡
- 项目类型:住宅
- 形态:示范区
- 市场定位:高端系
- 建成时间:2021年
- 风格:现代
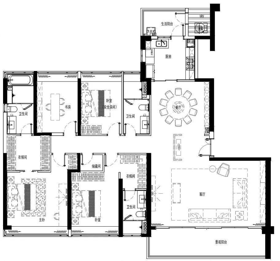
- 主力户型:高层 平层 210㎡以上 4室 2厅 3卫
- 设计面积:235㎡
- 容积率:1
- 装修类别:精装修
- 发布日期:2022-03-24
- 最近更新:2022-04-02 15:18


增江
延绵数十公里
天然山水画廊
孕育繁华,安静流淌
拥江发展枢纽引领
创基·丽江国际以增江畔为序
指引所有增城人回家的方向
阅尽繁华的增城人最难忘却
仍是故乡奔流不息的增江



Design comes from life
Details create quality

极具特色的屏风
让灵感自由释放
打造隔而不离的效果
Have distinctive screen extremely
Create separate and inseparable effect



中轴CBD之上的奢阔江景
结合奢华靓丽灯具的配饰
重新定义低奢的概念
创造一个心灵渴望的空间
Luxurious light fixtures
Redefine the concept of low luxury

增江的温柔似水和豪情万丈
与城市的繁华交替上演
在无声无息中变得包容平和
The alternation of the river and the city
Become inclusive and peaceful in silence

大师峯作一线江景豪宅
毯布柔软质感舒缓了日常的压力
将生活带入悠闲自在的情景
The soft texture of the blanket
Relieve the stress of daily life


IMAX江幕奢境
在安静而奢华的世界里
营造舒适氛围成就梦想之家
In a world of quiet luxury
Create a comfortable atmosphere

艺术品时尚家具的搭配
展示空间的低奢风尚
演绎不一般的居饰品味
Fashionable furniture
Show the low luxury fashion of space


金盘网APP
金盘网公众号
金盘网小程序


