雅居乐 · 容桂万象郡
探索摩登都市生活ModernCityLife,寻一方乐土,筑一寸时空,在静默中温情读诗,化繁为简。以现代简洁的设计手法,将空间层层递进, 倾力打造慢调、舒适的特色人居,于日常生活中,将艺术与生活融合的空间之美。
- 项目名称:雅居乐 · 容桂万象郡
- 项目地点:广东省 佛山市 顺德区容桂街道高黎居...
- 开发商:广州雅居乐实业投资有限公司
- 设计参考价:¥1200/㎡
- 销售参考价:¥11000/㎡
- 项目类型:住宅
- 形态:示范区
- 市场定位:高端系
- 建成时间:2021年
- 风格:现代
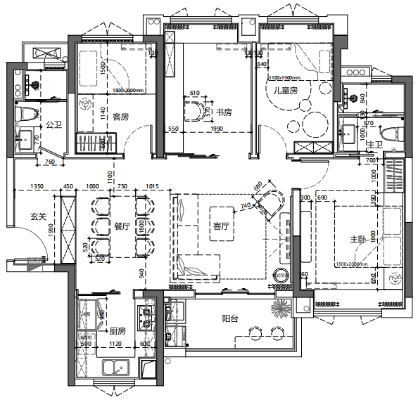
- 主力户型:高层 平层 70-90㎡ 4室 1厅 2卫
- 设计面积:90㎡
- 容积率:1
- 装修类别:精装修
- 发布日期:2022-03-24
- 最近更新:2022-04-02 15:35


家所构成的空间目的很简单
观察感悟生活中的点点滴滴
享受着每一份悠然自得
体验舒适安逸的生活环境
Observe and feel every bit of life
Enjoy every piece of leisure
Experience comfort and ease


舒适的空间感受到惬意和愉悦
洁白无瑕的L字型沙发
纹理和质感给人质朴而温暖
尽显品质生活之美
Feel comfortable and happy
White sofa gives a person plain and warm
Show the beauty of quality life

体验到期盼已久的身心舒泰
The afternoon sun wreathed it
A warm, luminous scent fills the space
The mind and spirit seek sustenance
餐厅|Restaurant


开放式的餐厅
增加了客餐厅之间的交流
有效规划空间布局
合理使用每一处空间
Open dining room
Increased communication between Spaces
Effective planning of spatial layout


米白色皮质餐椅
大理石长圆形餐桌
实用且精致的搭配
创造摩登家居生活
Leather dining chair marble dining table
Practical and sophisticated collocation
Create a taste of modern home life
主卧|Master Bedroom


Bay Windows let in plenty of light


用有限空间做无限设计
原木色的床头柜与壁橱相呼应
构成独特的空间视觉感
Unique semi-suspended closet
The nightstand echoes the closet
Constitute a unique spatial visual sense

早晨起来感受温暖的阳光
泡上一壶香浓的咖啡
边品尝边欣赏窗外的风景
让身心休整并焕发能量
Feel the warmth of the sun in the morning
Enjoy the scenery while sipping coffee
Revitalize your body and mind

低饱和度色调空间
利用简单的家具布局
把原有的空间净化
含蓄地表达出气质和品位
Low saturation tone
Use simple furniture
Express temperament and taste

Everything becomes simple
My mind is no longer tense
Create quiet beauty


Pink Space unusual art installation
Add interesting design elements
Develop children's creative thinking

充满少女心的粉色空间
对美好事物的无比向往
营造如梦如幻的秘密天地
给房间增加活力与热情
Pink space in a girl's heart
A longing for something beautiful
Create a dreamlike secret world


A private art space with unique views on art
Express your unique taste and style
Keep things fresh and interesting

用心去观察生活
提高生活质量
一切随心感悟人生真谛
Observe life with your heart
Meet personal spiritual needs
Improve quality of life



金盘网APP
金盘网公众号
金盘网小程序


