济宁保利和光屿湖营销中心
清晨的第一道晨光,带着治愈的期待,感受来自大自然的祝福。
- 项目名称:济宁保利和光屿湖营销中心
- 项目地点:山东省 济宁市 任城区高新区海川路与...
- 开发商:保利发展山东公司济宁城市公司
- 设计参考价:¥3600/㎡
- 项目类型:商业
- 形态:示范区
- 建成时间:2021年
- 风格:其他
- 设计面积:1200㎡
- 容积率:1.99
- 发布日期:2022-03-27
- 最近更新:2022-03-29 10:41

2022 ,清晨的第一道晨光
带着治愈的期待,感受来自大自然的祝福。
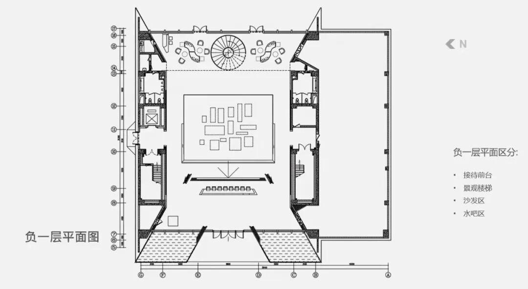
平 面 布 置 图

△负一层

△一层

△二层
项目信息
项目名称:保利·济宁和光屿湖营销中心
设计单位:广州市格菲软装饰有限公司
设计内容:软装陈设
设计主创:软装B组
项目业主:保利发展山东公司济宁城市公司
业主代表:任重 刘文 张婷婷 李泽栋 苏全 王威
摄影机构:一千度视觉
项目地点:山东 济宁
竣工时间:2021年9月
设计面积:1200 ㎡
项目位于东有孔孟、西有梁山的“文武双全”之城——山东济宁,陈设设计从项目地域性出发,捕捉济宁的“圣”、“水”、“麟”、“金”作为灵感,光与水的元素结合呈现出刚与柔、虚与实的碰撞,达到均衡之美。

01
光
点燃空间流动的艺术盛宴




△灵感来源——孔孟庙





02
水








03
麟
传承中包含着追求








04
金
铜音铿锵










项目信息
项目名称:保利·济宁和光屿湖营销中心
设计单位:广州市格菲软装饰有限公司
设计内容:软装陈设
设计主创:软装B组
项目业主:保利发展山东公司济宁城市公司
业主代表:任重 刘文 张婷婷 李泽栋 苏全 王威
摄影机构:一千度视觉
项目地点:山东 济宁
竣工时间:2021年9月
设计面积:1200 ㎡
金盘网APP
金盘网公众号
金盘网小程序


