中国绿发重庆鲁能·江津领秀城二街区
江津鲁能领秀城位于重庆市江津区滨江新城,雄踞滨江新城北门户,近享江津区政治人文中心、双轨提速融入主城等多重利好。项目定位为约70万方公园生活城,致力于为城市新居提供绿色健康品质人居标杆。其二街区规划及产品获得“健康社区设计金级标识”、“成渝双城人居榜...
- 项目名称:中国绿发重庆鲁能·江津领秀城二街区
- 项目地点:重庆市 重庆市 江津市重庆市江津区圣...
- 开发商:鲁能集团
- 销售参考价:¥5500/㎡
- 项目类型:住宅
- 形态:大区
- 市场定位:刚需系
- 建成时间:2022年
- 风格:现代
-
主力户型:高层 平层 90-120㎡ 3室 2厅 2卫
小高层(7-11层) 平层 120-144㎡ 4室 2厅 2卫
多层(4-6层) 平层 120-144㎡ 4室 2厅 2卫 - 占地面积:105440.77㎡
- 建筑面积: 335913.13㎡
- 容积率:2.3
- 绿化率:30.01%
- 总户数:2238
- 停车位:2680
- 规模:中型
- 地块:市区
- 地貌:山地
- 装修类别:精装修
- 发布日期:2022-05-06
- 最近更新:2022-05-26 14:57
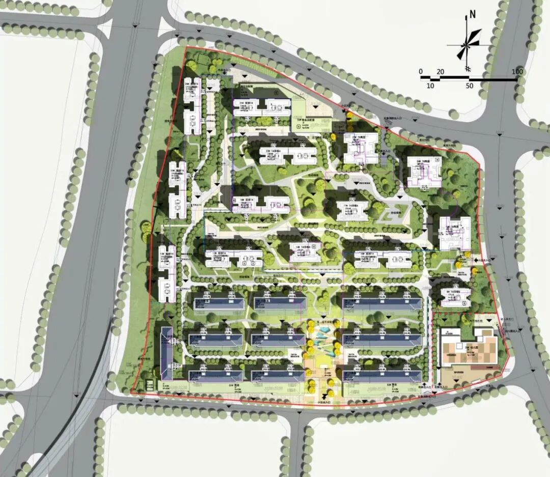
本案场地形状方正,场地开阔,考虑人行系统的均好性,以东西轴线为基准,组织社区的平面布局。

△方案局部鸟瞰图

△项目局部鸟瞰图
项目区位
Project Location
项目位于重庆江津滨江新城北门户,作为重庆科学城建设和“重庆向西”的重要载体和平台,成渝地区双城经济圈建设使其迎来重要发展机遇。近享重庆主城同城化先行区利好,,与主城大渡口区、巴南区以及九龙坡区相连,距离主城核心区距离约40公里。未来的滨江新城,将是以“总部经济、商业核芯、高端人居”为城市内核。

△区位分析

△项目局部总图

△项目局部鸟瞰图
方案设计
Scheme Design
本项目规划用地105440.77㎡,总建筑面积335913.13㎡。其中展示区售房部约900㎡。主要人流来向是场地西南侧的南北大道。且场地南侧的城市形象和昭示性较好,因此示范区设置在场地的南侧。前期作为展示中心蓄客展示,后期将作为商业用房永久保留。


因项目用地为典型的重庆山地地形,场地内部与南侧市政道路间存在一定高差,本案结合场高差布置展示区,且能享受到南侧公园景观。
总图布局基础上,前场展示区空间后延,纵向拉伸,结合独特的坡地景观,从归家开始,到展示区涵养身心的花香绿意,让日常生活写满诗意与情怀,也为业主归家流线提供了步移景换的场所体验。地面主体建筑结合小区大门、风雨连廊、多层级的庭院空间最终形成空间丰富、使用便捷、多维立体、现代艺术的生活体验中心。

△规划逻辑
方案生成
Scheme Generation
作为小区最主要的入口形象,整个大门的跨度达到将近40米。在这样的大跨度下,细部的打造能够最大程度上彰显建筑的品质。中轴对称的经典手法,将归家人流自动划分至两侧分别进入小区;配合虚实结合的细节处理和明暗色彩搭配产生的视觉冲击,充分体现精细化设计的优势。

△设计推演
立面设计
Elevation Design
示范区采用当代去风格化的外立面,整体时尚简约大气,极致的精工之美将经久耐看。
设计时考虑虚实结合,呼应城市界面,用简洁精致的设计语言打开昭示面。整个售楼部采用玻璃肋及玻璃外包手法实现完整通高和幕墙整体效果,开放式入口大门,40米大跨度形象大门,檐口设计与售楼部檐口接平,使其整体效果更具有延展性。尊享归家品质礼序和美学风华的理想邂逅。

△方案效果图
项目整体以深灰色和米白色打造——深灰色有质感,经典又高级,与米白色相互融合,相得益彰,这样高雅配色创造历久弥新的审美搭配。






入口空间设计
Entrance Space Design
示范区设计在地块中轴右侧位置,结合商业左右对称。将仪式化.品质化.功能化.便捷化.人性化贯穿于归家体系的每个角落,打造归家第一重尊贵形象。
穿过入口大堂,即是后场体验空间,是中庭叠水景观——开放式的后场空间,融入山石元素和互动装置,营造一座可赏、可游、可憩的家庭“后花园”。

△展示区景观平面图



示范区入口结合景观一体化,表达建筑的生态自然,为来访者营造一种沉浸式体验。极具仪式感的大门,尺度阔绰不失沉稳大气,尊崇归家第一印象。

△剖轴测





△售房部平面图

△室内空间设计

△室内设计实景图
细部设计
Detail Design
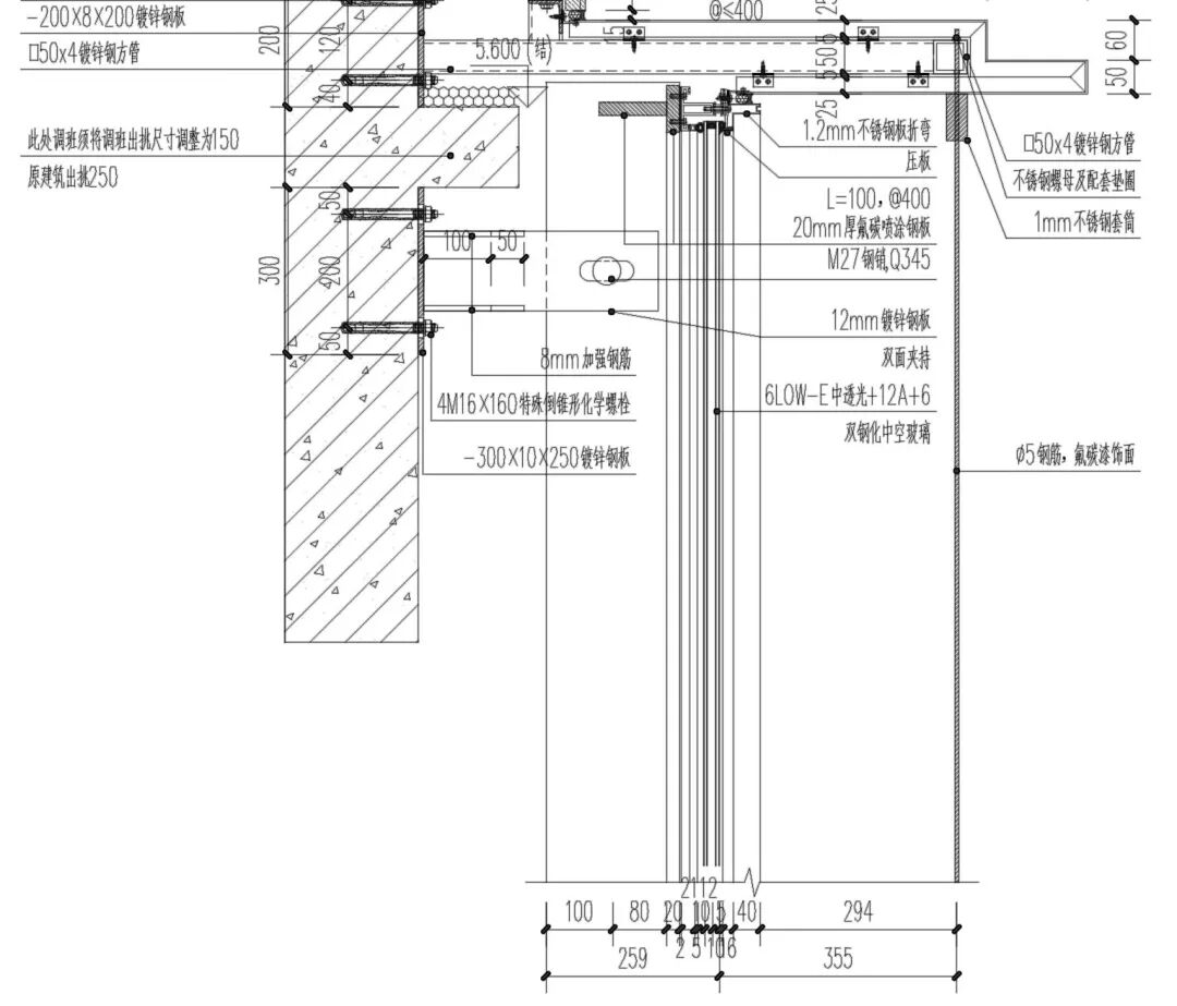
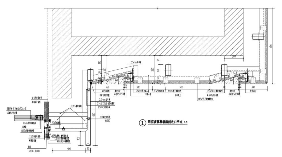
建筑主要材质采用深灰色不锈钢板和型材,一体化设计。收边收口多层次线条,使建筑细节部分更为典雅。
立柱定制、外挂拉丝钢索,石材外墙,挑檐收边,玻璃幕墙竖挺精细化设计等多方面做了精细化的设计,以增加建筑立面层次及耐人寻味。

△立柱节点大样图


△立柱细部对比图

△拉索节点大样图


△拉索细部对比图

△石材外墙节点大样图


△石材细部对比图

△檐口节点大样图


△檐口细部对比图

△立梃节点大样图


△立梃细部实景图
空调机位、落水管采用隐蔽设置,保证外立面整洁、干净。

△空调通风设计

△管道隐藏设计
玻璃幕墙分层次采用彩釉玻璃、中高透LOW-E玻璃;使整个立面线条逻辑简约流畅,彰显细节品质。


石材幕墙材质选用云纹石材及葡萄牙米黄石材,营造出丰富的光影变化。




大区设计
Regional Design
项目位于重庆市江津区滨江新城,滨江新城作为江津“一轴两翼”、同城一体化发展的桥梁和枢纽,承担着整个江津老城人口疏散、产业转移的重任,经过十多年的发展,在时代战略的赋能下,滨江新城谱写了一段持续发展,不辱使命的奋斗篇章,傲然崛起于长江之滨。
如今,“绿色”已成为滨江新城的“底色”,生态宜居成了这个城市的新名片。市民开门见绿,移步异景,公园建设美化了城市环境,更提升了广大市民的幸福指数。每一座城市,都有与其匹配的生活方式。
滨江新城之于江津鲁能领秀城,不仅是发展健康人居的沃土,更是其深耕重庆,洞悉江津人居需求,为江津呈现美好生活,也是我们本次设计的重点。

△方案总平面图
项目位于江津滨江新城南北大道旁,秀园路中段。用地较为平整,景观资源优越,区域交通便捷。本项目规划总用地约 160亩,总建筑面积约33万㎡。



△沿街效果图
当下人们对健康生活方式、邻里氛围、情感关怀的全方位需求日益迫切,“健康家园”这一现代城市宜居范本的出现,无疑顺应了当今时代的需求。
江津鲁能·领秀城将绿色自然、低碳环保与建筑设计有机结合,整体立面采用现代风格。运用简单的立面语言来诠释精致、阳光、挺拔的项目态度。





△住宅效果图

△商业效果图














住宅细部设计
门头:门头部分采用黄金比例分割,顶部线条增加防流挂措施。门头的比例更协调,外框.门口.线条融为一体。处处彰显细节,给人以尊贵感。两侧竖向线条疏密、宽窄的精致变化,横向线条跟石材线条的拉通,门头隐藏灯带的处理,让大门的层次显得优雅,大气。
材料部分采用拉丝铝板(紫铜)及葡萄牙米黄石材,配合铝合金格栅一体成型压制,精致.厚重.大气与整体建筑立面气质更契合,提升近人尺度的品质感。
△门头透视图

△门头节点大样图

△门头铝单板幕墙大样图

△门头铝格栅大样图
栏杆:立面幕墙式玻璃栏杆,扶手部分采用铝合金材料,面板部分采用双钢化镀膜夹胶玻璃。整体时尚简约大气。

△住宅透视图

△玻璃栏杆节点大样图
屋顶:水平线条压顶收分,使建筑整体协调,屋顶以及基座灰咖色部分采用金属氟碳漆,在节省成本的同时,提升建筑质感。
△住宅透视图
△屋顶节点大样图







工程资料(含设计、工程、材料)
材料及其应用场景
米黄色多彩漆
米黄色多彩漆
米黄色多彩漆
米黄色多彩漆
米黄色多彩漆
米黄色多彩漆
葡萄牙米黄
葡萄牙米黄
葡萄牙米黄
葡萄牙米黄
葡萄牙米黄
葡萄牙米黄
紫铜色铝板
紫铜色铝板
紫铜色铝板
紫铜色铝板
紫铜色铝板
紫铜色铝板
瓷砖
瓷砖
瓷砖
瓷砖
瓷砖
瓷砖
瓷砖
金盘网APP
金盘网公众号
金盘网小程序




