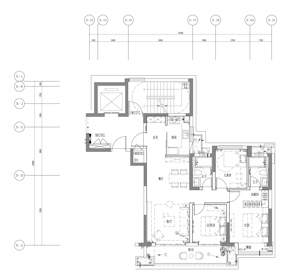
奉化华鸿嘉信宁南君璟府113㎡样板间
作为大户型其空间感的开阔性和功能的丰富感是最大的特点在空间上客厅满足大面采光两侧造型面简约化处理,让空间舒适度最大化
- 项目名称:奉化华鸿嘉信宁南君璟府113㎡样板间
- 项目地点:浙江省 宁波市 奉化市奉化市
- 开发商:华鸿嘉信
- 设计参考价:¥500/㎡
- 项目类型:住宅
- 形态:示范区
- 市场定位:改善系
- 建成时间:2021年
- 风格:现代
- 主力户型:高层 平层 90-120㎡ 3室 2厅 2卫
- 设计面积:113㎡
- 容积率:1.8
- 装修类别:精装修
- 发布日期:2022-05-24
- 最近更新:2022-05-24 14:15
113户型·港派简约
关键词: 简约、国际、绅士、时尚

作为 大户型
其空间感的开阔性和功能的丰富感是最大的特点
在空间上客厅满足大面采光
两侧造型面简约化处理,让空间舒适度最大化



客厅
-
电视背景面选用帝王翡翠岩板为主,结合浅色木饰面格栅,下方搭配深色地台,形成石材与木材之间的刚柔的碰撞对比,同时延长木饰面体块与走廊尽头形成呼应。

-
沙发面以皮革硬包分缝处理,在适当的分割线上搭配圆形配饰,打破图形的呆板,使画面更加灵动和谐。


餐厅
-
餐厅设置精心度量的时尚酒柜,以白色烤漆板和灰色玻璃结合设计。用餐之余,一杯红酒释放一日工作后的压力和疲倦。



主卧
-
主卧以低调的奢华作为装饰理念,简约却精于品质。米白色皮革与茶色镜面结合为主背景,在材质上形成软硬的触感和虚实的对比,予人华丽的轻松。再搭配灰咖色软装呼应主色调,温馨的灯光将氛围感拉满,归属感油然而生,消解繁忙都市人的疲乏。


老人房
-
老人房延续低奢的软装饰面,灰度适中的大地色系辅以温和沉稳的质感,营造内敛而淡雅的空间气质。

玄关

厨房
放松、愉悦、治愈系的人居空间
让每一个家庭成员徜徉在温馨质感的环境内
获得元气补充与慰藉
-

金盘网APP
金盘网公众号
金盘网小程序




