TRD尺道设计广州总部企业办公
2022年,尺道设计企业总部迁至广州琶洲CBD核心发展区域,毗邻珠江,是城市功能新旧迭替与历史文化沉淀的新中心,是城市未来发展的脉搏所在地。 而此次办公总部的跃迁,亦是尺道十余年发展历程中迈出的关键一步。
- 项目名称:TRD尺道设计广州总部企业办公
- 项目地点:广东省 广州市 海珠区海洲路18号TC...
- 开发商:广州 TCL 科技发展有限公司
- 设计参考价:¥1000/㎡
- 销售参考价:¥50000/㎡
- 项目类型:办公
- 形态:示范区
- 设计年份:2021
- 建成时间:2021年
- 风格:现代
- 占地面积:9000㎡
- 建筑面积: 145000㎡
- 设计面积:1000㎡
- 容积率:2.5
- 绿化率:20%
- 发布日期:2022-06-06
- 最近更新:2023-09-28 10:31

从刀耕火种到现代文明;
从逐草而居到筑墙结寨;
从宗族部落到城邦国家;
一部城市的发展史,交织着人类文明的进化史。
From slash-and-burn to modern civilization;
From living by grass to building walls;
From clans and tribes to city-states;
A history of a city is intertwined is the evolution of human civilization .
新与旧,前进与留存,冷静与炽热......所有的感知与想象都在这种“极端的浪漫冲突”下发酵、生发。
城市之于我们,是现实的枷锁,是生活的载体,更是修悟的道场。





人类,
因群居而形成社会,因分工而凝结城市,
为交流而发明语言,为传承而创造文字,
从生存出发产生信仰,从理想出发缔造艺术。
Human beings, communities form society, cities form cities by division of labor,inventing language for communication, writing for inheritance , from the survival of faith, from the ideal to create art.




For modern cities, red brick walls are undoubtedly an indelible mark that will soon disappear. TRD introduces this symbol in the minimalist space, and uses a strong contrast to express our respect and awe for history.
城市观察者/
City observer




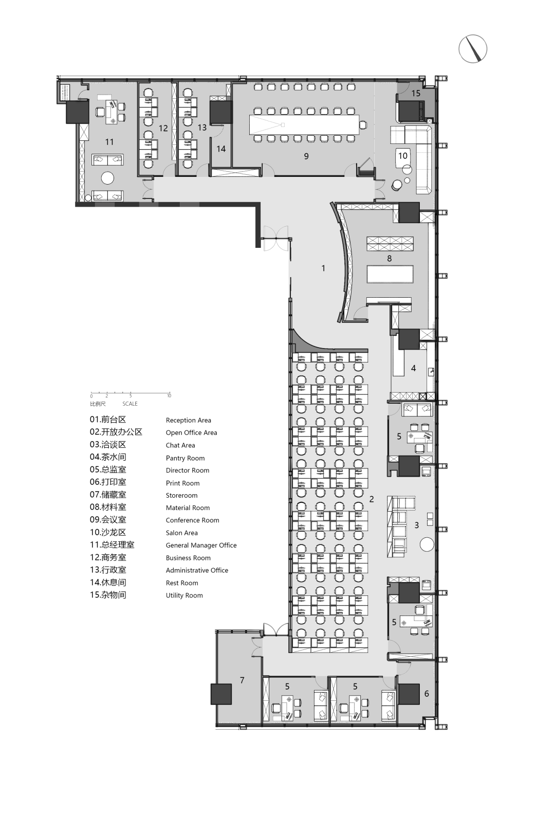
主体空间呈现为L型的布局,各功能区域相互咬合。
对于办公空间的动线设计,设计师通过体块组织动线,动线继而串联场地,以化整为零的手法让室内空间看似自由,实则有序。
The main space is presented as an L-shaped layout, with each functional area occluding each other.
For the moving line design of the office space, the designer organizes the moving line through the block, and then connects the site with the moving line. By dividing the whole into parts, the interior space looks free, but in fact it is orderly .





我们希望倡导一种更友好、开放、自由的工作场域。
总体办公区域以一种敞开式的模式置于核心空间,中部再通过一片大面积的休闲交流区域与外部相连,让窗外的城市及江河与室内空间达成一种交互对话,达到一种内心深处的平和、共鸣。
We want to provide a more friendly, open and free workplace.
The overall office area is placed in the core space in an open mode. In the middle, it is connected with the outside through a large area of leisure and communication, so that the city and rivers outside the window can reach an interactive dialogue with the interior space, and achieve a kind of inner peace and resonance.













主笔设计师
蔡剑劲 | TRD 硬装设计总监

李妍 | TRD 软装设计总监

关于 TRD尺道设计
素尺千里·大道至简
广州市尺道室内装饰设计有限公司,成立于2008年,总部位于广州市。TRD尺道具备装修设计乙级资质,通过ISO质量管理体系认证,获得国家信用管理AAA体系认证,以及政府采购优秀供应商称号。
自创立之日起,TRD一直致力于高端公装项目的室内装饰设计研究与实践,提供硬装装饰及软装工程服务。主要服务领域包括:房地产、商业地产、办公地产。同时,亦为国内部分酒店、餐饮、娱乐空间等提供软硬装设计及软装工程服务。
TRD尺道设计的作品已在国际范围内赢得了广泛认可及众多的行业荣誉,囊括意大利A’Design金奖、法国双面神设计金奖、日本IDPA设计联展金奖、亚太设计师金奖、IDCF中日精英赛金奖、金盘奖众多奖项、金外滩奖金奖、中装协金鹰奖金奖等等。我们的优秀落地案例遍布全国三十多个城市,为推动城市发展及提升人居生活体验留下了处处闪亮的印记。
经过多年积累,TRD尺道与众多大型开发商达成了长期合作关系,包括越秀城建、珠江投资、合生创展、凯德置地、龙湖集团、广州城投、佛山建投、首创置业、深业集团、融信、碧桂园、希尔顿集团、温德姆集团等,我们的服务深受百强开发商及大型跨国酒店管理品牌的认可。
素尺千里,大道至简,是尺道秉承的设计理念。探索设计新边界,传播现代审美文明,是我们的使命。尺道设计,希望与您一起,为持续提升人类审美及美好生活体验而努力,共同描绘更加精彩的明天!
TRD尺道设计 荣誉
2022-金盘金居奖东南部地区最佳酒店空间奖;
2022-金盘西部地区最佳预售楼盘奖;
2022-金盘最佳酒店空间奖;
2022-金盘最佳别墅空间奖;
2021-IDG国际空间设计大赛金创意铂金奖;
2021-法国双面神杯设计金奖;
2021-日本国际先锋设计大奖;
2021-美国IIDA设计大奖;
2020-中装协中国设计品牌陈设艺术专业全国十强设计师-李妍;
2020-亚太空间设计地产类金奖;
2020-金堂奖-软装陈设杰出样板间;
2020-美国缪斯设计大奖;
2020-金盘奖最佳预售楼盘、最佳商业办公空间;
2020-英国安德鲁·马丁室内设计金奖;
2019-中国建筑装饰协会华鼎奖,软装陈设类金奖;
2019-中国建筑装饰协会金鹰奖,商业空间金奖;
2018-意大利A’Design室内设计金奖;
2018-APDC亚太室内设计精英邀请赛商业空间专项大奖;
2018-IDPA国际室内设计先锋奖展示空间银奖;
2018-中日设计交流展-TOP100国际影响力华人设计师-李坤;
2018-中美设计交流展-TOP100国际影响力华人设计师-蔡剑劲;
2017-ID+G金创意国际空间设计大奖-最具影响力设计机构奖;
2017-ID+G金创意国际空间设计大奖-商业空间银奖;
2017-金外滩奖最佳商业空间大奖

金盘网APP
金盘网公众号
金盘网小程序



