巴西里约热内卢Borges 3647公寓楼
项目坐落于里约热内卢,以当地气候与景观为基础由巴西本土建筑事务所CitéArquitetura设计。在公寓楼内,从某些角度可以看到著名的“救世主基督”神像以及最受人们喜爱的休闲沉思之地——RodrigodeFreitas泻湖的非凡风光。该项目以朴素实用的设计手法与高质...
- 项目名称:巴西里约热内卢Borges 3647公寓楼
- 项目地点:巴西里约热内卢
- 开发商:Cité Arquitetura
- 销售参考价:¥1500000/㎡
- 项目类型:公寓
- 形态:大区
- 建成时间:2021年
- 风格:现代
-
主力户型:小高层(7-11层) 平层 120-144㎡ 3室 2厅 2卫
小高层(7-11层) 平层 144-180㎡ 4室 2厅 2卫 - 占地面积:6900㎡
- 建筑面积: 18790㎡
- 容积率:3
- 装修类别:精装修
- 发布日期:2022-06-06
- 最近更新:2022-06-06 11:46
▼由街道看建筑 ©Pedro Vannucchi

▼公寓楼外观 ©Pedro Vannucchi

▼大量的玻璃营造出通透的空间氛围 © Pedro Vannucchi

▼由建筑看泻湖 © Pedro Vannucchi

▼阳台与顶层公寓的露台 ©Pedro Vannucchi

▼富有视觉冲击力的水平线条 © Pedro Vannucchi

▼外观细部 © Pedro Vannucchi



▼入口立面 © Pedro Vannucchi

▼底层的立面由混凝土和穿孔金属板组成 © Pedro Vannucchi

▼底层室外花园 © Pedro Vannucchi

▼二层公寓自带的花园与泳池 © Pedro Vannucchi

▼底层入口室内概览 © Pedro Vannucchi

▼大面积的玻璃幕墙与室外阳台将景观引入室内 © Pedro Vannucchi

▼由阳台看室外景观 © Pedro Vannucchi

▼顶层公寓的室外露台 © Pedro Vannucchi



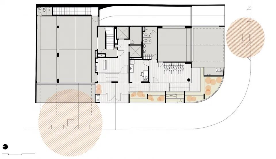
▼底层平面图 © Cité Arquitetura

▼二层平面图 © Cité Arquitetura

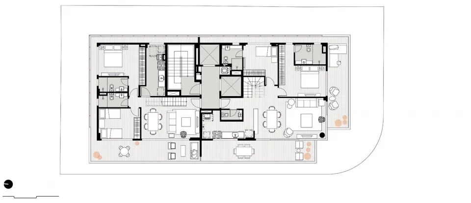
▼三居室层平面图 © Cité Arquitetura

▼两居室层平面图 © Cité Arquitetura

▼顶层公寓平面图 © Cité Arquitetura

▼顶层跃层及露台平面图 © Cité Arquitetura

金盘网APP
金盘网公众号
金盘网小程序


