泰康之家 · 桂园
建筑是用连续屋檐绘制的山水画卷,老人们可以在屋檐下感受南方的山和水。同时,建筑也变成了山水的一部分。
- 项目名称:泰康之家 · 桂园
- 项目地点:广西壮族自治区 南宁市 兴宁区天德路
- 开发商:泰康健康产业投资控股有限公司
- 设计参考价:¥80/㎡
- 项目类型:其他
- 形态:示范区
- 设计年份:2019
- 建成时间:2022年
- 风格:现代
- 占地面积:91292㎡
- 建筑面积: 235000㎡
- 设计面积:235000㎡
- 容积率:1.5
- 绿化率:30%
- 地块:郊区
- 装修类别:拎包入住
- 发布日期:2022-06-10
- 最近更新:2022-06-23 13:52

长寿时代的机遇与挑战
广西是全国最早进入老龄化社会的省区之一。2020年第七次全国人口普查主要数据公报显示,广西人口老龄化的发展,主要体现在老年人口数量较大、老龄化进程加快。60周岁及以上老年人口超过800万,占广西常住人口的15.8%。
泰康之家·桂园养老社区是泰康投资建设的大规模、全功能、国际标准的高品质医养社区,将打造成广西壮族自治区首个高品质养老服务机构,能够为老人提供独立生活、协助生活、专业护理、记忆照护四种生活服务,满足不同身体状况老人的照护需求,实现一站式退休生活解决方案,打造一座“老年迪士尼乐园”。


养老活力中心居于社区中心位置,依据原有地势设计,与自然景观融为一体。曲面屋顶下的空间与广西喀斯特地貌的神韵呼应,沿着长廊观赏湖与山,犹如一幅步移景异的山水画卷缓缓展开。

△效果图
活力中心功能涵盖老年大学、图书馆、康体健身中心、多功能厅、文娱中心和美食中心六大功能板块,地上建筑面积9178.19m²,作为公共空间服务整个社区。几大功能板块与毗邻的具有社区展示销售功能的超级体验馆一起,围绕公园线性展开,并由一条公共长廊串联,对公园形成半环抱势态。同时,连廊也串联起整个社区,成为老人们活动和通行的风雨长廊。有机流动的交通流线为老年人带来体贴、便利的体验。大尺度的自然景观带环绕活力中心,当地花木错落种植,景致随四季变换,老年人栖居其中,可沿连廊缓步与自然亲近,也可在大屋檐下望山赏雨。

△方案生成
建筑屋顶采用单层网架结构建造连续的弧形曲面,既满足屋面造型需求,又减少结构厚度,增加建筑室内净高。屋面采用平锁扣体系,外饰面材质使用现代材料钛锌板,延展性高。同时,锌作为可回收材料,减少了在生产过程中的能耗。长方形屋面板的搭接继承当地民居屋面瓦的搭接方式,用现代技术延续传统。

△效果图

△效果图

△效果图

△效果图

△效果图
人文与自然,是当今在城市中居住的人们对生活的理想。设计师以感性的方式,在南宁泰康之家·桂园的建筑实践中,探讨建筑与自然环境、人文情感的在居住中的融合体验。

连续檐口曲线

曲面屋顶

泰康之家·桂园主入口

△活力中心-首层平面图

△活力中心-二层平面图

△活力中心-南立面图

△活力中心-北立面图


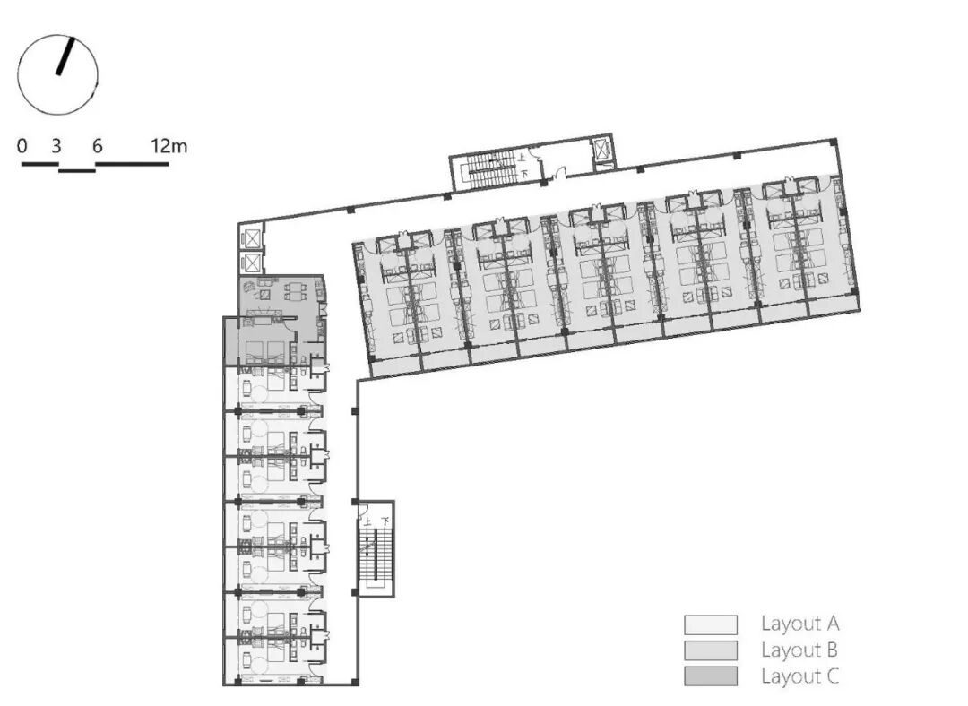
△医护服务组团-首层平面图

△独立生活板块-组团标准层平面图
金盘网APP
金盘网公众号
金盘网小程序





