金盘网首页
移动端
  • 金盘网APP
  • 金盘网公众号
  • 金盘网小程序

开发商首页 项目展示开发团队 招投标 合作伙伴开发商介绍 店铺动态

首页>华侨城地产>成功案例> 深圳华侨城天鹅湖一期私宅
关注关注:1 浏览:1725分享分享到

深圳华侨城天鹅湖一期私宅

清风徐来,穿堂而去,白色的纱幔连接视觉深处,摇曳着梦幻又富有艺术的舞姿。晨间的阳光,四面环绕,陪伴着人们迎来丰盛完美的一天。佰利设计用简适、天然的方式,为居者分享了所想即所得。

服务范围:地产开发-住宅

销售参考价: 价格待定
2022金居奖
东、南部地区年度私宅空间金奖
浏览人数:
1725

华侨城地产

描述 服务

4.8 4.8

好房指数:待认证

成功案例

  • 项目名称:深圳华侨城天鹅湖一期私宅
  • 项目地点:广东省 深圳市 福田区福田区
  • 开发商:华侨城
  • 项目类型:住宅
  • 形态:示范区
  • 市场定位:改善系
  • 建成时间:2021年
  • 风格:现代
  • 设计面积:135㎡
  • 容积率:1.8
  • 装修类别:精装修
  • 发布日期:2022-06-17
  • 最近更新:2022-06-17 10:24
对于空间我们永远有丰富的想象。


图片

该项目是一套360㎡的阔景大平层,90后年轻业主有着自己对生活的独特见解,去除繁复,现代风格成了最优的选择。

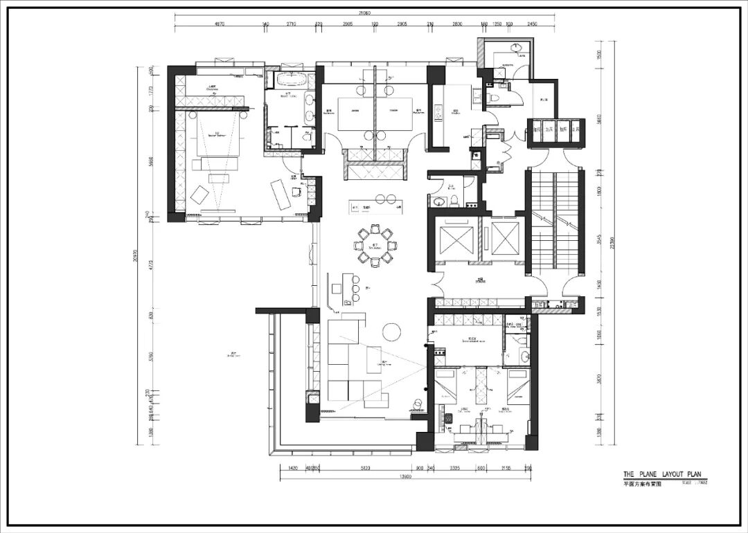
户型优化:主要改造是原有的一间大套房优化为两间小孩房,一个小孩娱乐区及共用套卫,满足其功能需求外并梳理了其空间状态,动静相宜。

图片

清风徐来,穿堂而去,白色的纱幔连接视觉深处,摇曳着梦幻又富有艺术的舞姿。晨间的阳光,四面环绕,陪伴着人们迎来丰盛完美的一天。佰利设计用简适、天然的方式,为居者分享了所想即所得。

双面采光的大客厅无疑是这个家的核心区域,午下时分,那一抹夕阳余晖洒进客厅,家的温度于此升华。

图片
图片
图片

这是天然呈现,每一样都在默默表达。日常画面任由时间的剪切、拼接,充满了蒙太奇的生活影像,激荡着心灵。

图片

家宅的物什,雕刻得越简单,对居者想象的影响就越大。舒适的miontti沙发,描绘出家人与朋友间畅谈的亲密时光。在通透明朗的视觉下,尽可能传达简洁、开放的包容感,晚暮时分,在光与斜影中静谧归家。

图片
图片

悉心雕刻的家宅,是一处庇护所,它要求人们单纯地居住其中,“简单性”给人以巨大的安全感。手上的纸张,随着思想一页页翻动,耳畔仿佛有树叶在沙沙作响,听,那是心底唤醒的世界。

图片
图片
图片
图片

春日宴,绿酒歌。大理石的熔岩喷薄出幻象奇纹,聚积在了这片被丝织包围的天空,它用光滑如雪的地板作为平台,定格了盛放。四时唯春,万物生长。

图片
图片
图片
图片
图片
图片

有些色彩是天生的酒,看着不起眼,但微醺,甚至在满目的黑白灰中绽放醉人的光晕。皮质的嵌合,透露着清淡的奢华、高贵,更重要的是柔软耐磨,可减少人长久伏案的不适与劳累。

图片
图片
图片

增加一些别样设计,即可营造童真趣味。萌软的粉白组合,既治愈又梦幻,角落的大熊玩偶,静静地守护着这个女孩的秘密基地。

图片

色彩碰撞是这几个空间的特有属性,洞洞板、壁布、家私,灯具相关的选择都是为了空间服务,追寻自然。

图片
图片
图片

一个家宅的梦想家任何时候都能看见家宅,佰利设计用空间作为介质,传递给居者尊享的态度,丰富生活的每一个起居日常。



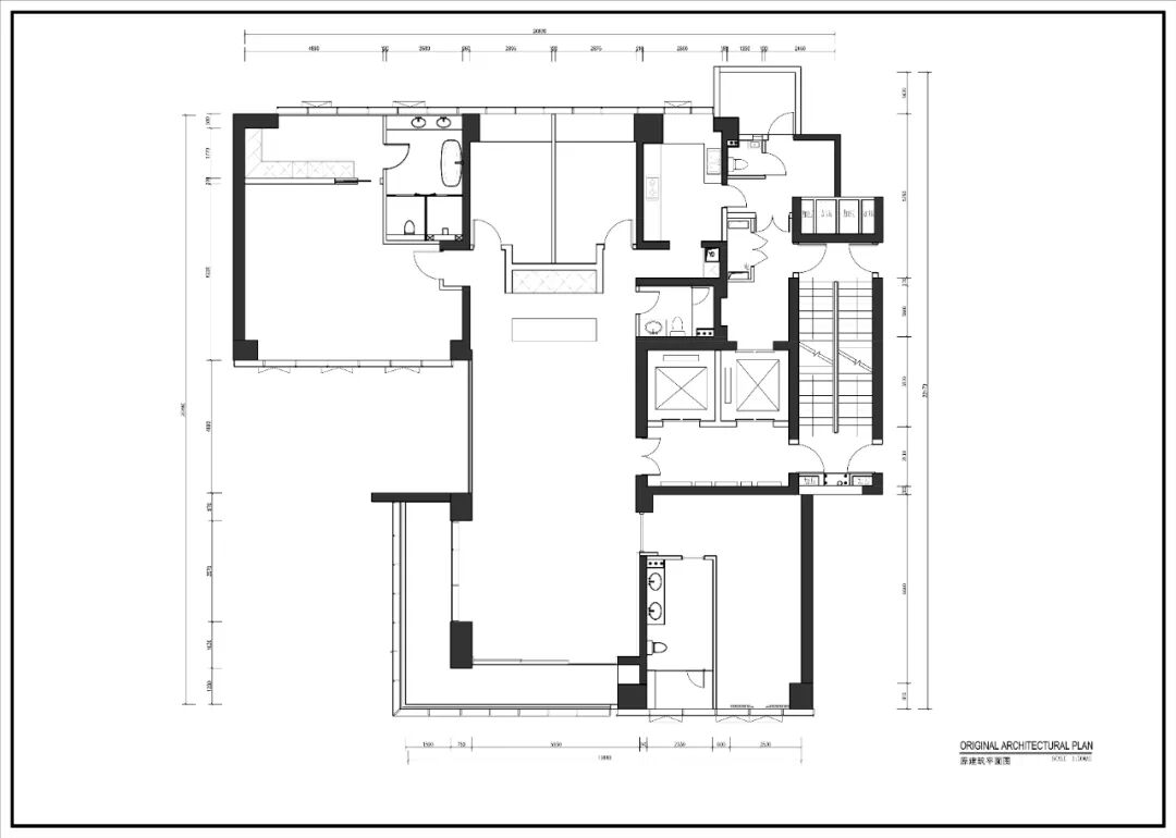
平面图

DESIGN PLAN


图片
初始结构

图片
平面方案




看详细研发档案(最多300+P)>>
提示
X

材料清单兑换需消耗 29金豆,确定兑换该项目材料清单?

金豆数:如何获得金豆?

提示
X
你已认领5个材料,不可再认领。
开通旗舰店可不限认领数量,是否去开通旗舰店?
材料清单
X
上一页 下一页
选择材料
X
商家列表
X

关于金盘网 | 帮助中心 | 联系我们 | 网站合作 | 法律声明| 开店指南| 网站地图 | 诚招英才
客户热线:020-38182178 客服邮箱:sunxb@kinpan.com
粤ICP备2022080590号
Copyright © 2008-现在 广州金盘网络科技有限公司,All Rights Reserved