常德中梁美的御湖半岛
?自然环境的美好总是让人心旷神怡的,水元素更是使人身轻心悦,怡然自得,建筑设计不应只是冷冰冰的住所,而应该是人与自然和城市交流的纽带,让人们真正体会到家的温度。
服务范围:地产开发-住宅
销售参考价: 6500 元/平方米两湖地区预售楼盘
入围项目
- 项目名称:常德中梁美的御湖半岛
- 项目地点:湖南省 常德市 武陵区桃花源与柳叶大...
- 开发商:中梁控股集团有限公司,上海中梁地产集团有限公司
- 销售参考价:¥6500/㎡
- 项目类型:住宅
- 形态:示范区
- 市场定位:刚需系
- 设计年份:2020
- 建成时间:2020年
- 风格:现代
- 占地面积:106977.28㎡
- 建筑面积: 368708㎡
- 设计面积:368708㎡
- 容积率:2.69
- 绿化率:35%
- 规模:大型
- 地块:其他
- 地貌:平地
- 装修类别:毛坯
- 发布日期:2022-08-02
- 最近更新:2022-08-02 11:38

“为天下溪,常德不离”
吞洞庭湖山色,纳湘西灵秀,
传承千年底蕴,览武陵风光。
两千年的文化底蕴构建常德具有水之灵气的古风韵律。
——中梁美的·御湖半岛
01 规划区位
常德,古称“武陵”、“朗州”,湖南省辖地级市。位于湖南北部,江南洞庭湖西侧,武陵山下,史称“川黔咽喉,云贵门户”,常德城名源自《老子》“为天下溪,常德不离”。

@区位分析
项目选址于常德市经济、政治、文化中心,地理位置优越。基地处于常德市武陵区位置,交通便捷。

@周边配套分析
基地周边商业配套完善,教育资源丰富、医疗设施齐全,临近费家湖以及公园,自然资源得天独厚。
02 设计理念

@规划分析
规划设计本着以“一心”,“两轴”,“双带”,“四核”理念,将建筑顺应自然的肌理,建筑服从山水,生活顺应内心。

@体块生成
设计考虑了商业价值及设计美感,将商服建筑沿着地块的主要道路排置,同时住宅单体错落有致的穿插,建筑之间自然地围合出区域绿化组团,与周围的景色相互借景,渗透,与自然有机地融合。

@总平面图
3个地块皆紧邻城市交通主道路和交通枢纽,交通十分方便,地块的形态像半岛一样嵌入湖中,被湖景环抱,环境优美,地理位置得天独厚。



03 立面表现

@社区入口
入口的设计以简约,静谧的设计理念为主,与周围的湖水景致的调性相协调,入口以对称的形式展现,更体现出庄重沉稳的性格,让回家的主人感受安静祥和的氛围。

@沿街景图
柳叶大道和青杨路作为一个规划区主要的交通枢纽,设计师在设计上也是将商业价值与发挥到最大化,沿街立面繁华的商业展示与建筑单体的排布将人们引向中心湖景区,这样的设计将因地制宜,将服务于人和与商业效益相结合的城市规划理念发挥到极致。

@立面效果图
建筑单体的造型整体典雅大气,采用经典的三段式立面设计,经典又不会过时,立面竖向杆件的突出运用,使建筑的形象高松挺拔。

@立面透视图
褐色与白色的立面材质交织融合,让建筑整体散发出简约却又不简单的现代气质,大面积的玻璃幕的的设计,将周围优越的景色尽收眼帘,让居住在这里的住户在各个维度上都有优质的生活体验。
04 景观空间

▼




小区内部穿插多个景观绿地广场,为居住者提供足够且丰富的休闲和活动场地,呈现出绿化美观且宁静的生态型公共空间。
▼




设计上充分地考虑了人们日常需要的、所需的娱乐活动,在公共场地设穿插设计和诸多的建筑小品或者休闲运动场地,让人们在舒适居住的同时,也享受着快乐健康的生活。
05 立面表现


@立面材质分析图
米色石材以极强的包容性作为空间的基石,深咖色金属漆点缀其间,两个主基色调彼此衬托,将建筑硬挺和优雅的性格展现给了空间,玻璃的冷色料与其它材质暖色调相互交融,柔和,让建筑有了温度,而金属的加入,又使得建筑的光影细腻而流动。
06 节点大样

@节点大样图
07 山水城市

一湖环抱相拥,筑“山”影嵌其间,天水一色,山水怡情,遵循礼制的序列,共建美好的家园。
——中梁美的·御湖半岛

@体块生成
建筑选址选在道路交叉点枢纽,让受客面最大化,同时代表大区展示整体形象。前广场的设置,还给人们更多驻留和活动的空间,同时,两边配合着其他的商业配套,将沿街区域打造成热闹和繁华的商业区。




前场的的流线设计呼应并衬托着建筑主体,加强了设计的整体性,同时广场铺砖的流线设计由空间的宽广到收窄,形成了一条明朗的观览游线,最终到达礼仪水景区,突出主体建筑,使整个设计整体又严谨。

@主要市政界面视角分析



园区内部置景造势,中间主通道两边设计了“山水盛世"的构筑物,形似“山”的构筑物前后层叠,排布于水的中央,紧扣本项目的主题——“山水城市”,这是给参访的第一记观感,带着这个印象继续探秘建筑的整个华章。

具有雕塑感的异形构筑物,寓意为聚集的鱼群,借天景为大海,在圈环的框景下,形成一幅亮丽的海底世界风景图。同时构筑物设立在主建筑入口前,起到象征性以及提示性的导向作用,而亮丽的金属辉映着金色的灯光,给空间增添了一丝奢华雍容的气质。


水池中错落叠放的构筑物,象征着连绵不断的山,与周围的水池一起构成了一幅静态的山水缩影画,突出了本项目的设计概念,使示范区与整体的大区设计十分契合,起到了画龙点睛的作用。构筑物的立面采用白色和镂空的设计,使构筑物本身更加轻盈,风格上也更加的现代简约。
08 结语

建筑师说——
“建筑在它拔地而起的那一刻是最开心快乐的,建筑师的精神与荣耀在这一刻都淋漓尽致的表现出来,而过程中的艰辛与汗水也都视而不见了。”

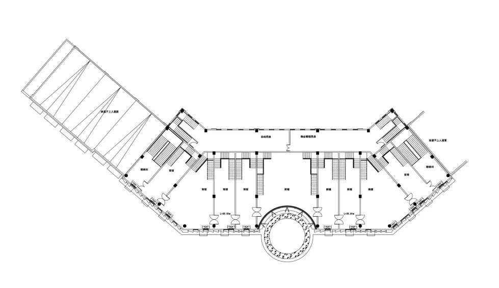
@一层平面图

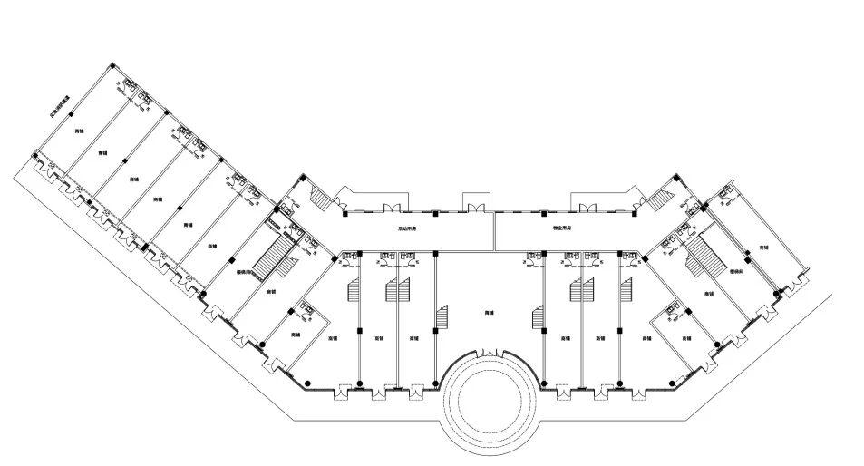
@二层平面图

@正立面

@背立面






金盘网APP
金盘网公众号
金盘网小程序





