碧桂园·国湖私宅
该项目位于长安区碧桂园?国湖,这是一个精装改造项目,屋主是一对中年夫妻,对于自己的养老房,自然是要求简单沉稳。所以在风格上汲取了中式、日式元素与现代简约相融,在多种不同的风格中寻求平衡,局部低饱和度的流行色点缀空间。
- 项目名称:碧桂园·国湖私宅
- 项目地点:陕西省 西安市 长安区汉池一路与镐京...
- 设计参考价:¥1000/㎡
- 项目类型:私宅
- 建成时间:2022年
- 风格:其他
- 设计面积:150㎡
- 发布日期:2022-08-10
- 最近更新:2022-08-10 14:46

Project
Country Garden,xian
Design Team
S. T. Design
Area
150 m²

Minimalism style
该项目位于长安区碧桂园•国湖
这是一个精装改造项目,屋主是一对中年夫妻
对于自己的养老房,自然是要求简单沉稳
所以在风格上汲取了中式、日式元素与现代简约相融
在多种不同的风格中寻求平衡, 局部低饱和度的流行色点缀空间
/
客 厅
Living room
承载
/

将原始吊顶拆除
利用客厅沙发背景的柜子上面的空间做了中央空调
过道和客厅吊顶做了平顶
视觉上扩大了客厅的面积
将原来过道的区域也规划到客厅里面
编织羊毛地毯划定了生活区
阳台外朦胧的景色与室内相辅相成
自然材料有意识的分层为空间带来触觉和永恒

客厅背景墙是用胡桃木的材质做了悬空柜
利用中式风的特性与简约风格进行融合
构造优雅宁静的气息
在简约环境之中低调释放奢意的高级感
原始精装的地砖与木色背景墙相互交织
将沉稳与舒适糅合,构筑起一方现实而自然的温情空间

没有繁杂的材质堆积,也没有艳丽的色彩
实木家具、棉麻质感的小体量沙发
古朴为韵味的灯饰、茶壶
中式的淡泊素雅与现代简约融入的同时
微侘寂做了点缀
这空间的魅力就像抿一口清茶,沁人心脾、安闲自得

开放式客餐厅让空间视觉上更宽敞
硬装和软装选择木系元素
消除现代设计的单调感
赋予空间素净的暖意

/
餐 厅
Dining room
浪漫
/

艺术涂料从客厅墙面延伸到餐厅
层层递进,堆叠出清雅的餐厨系统
自然的色调在视觉上实现空间的最大功能性
交汇出温馨的就餐氛围

不是纯粹的元素堆砌
多种风格碰撞产生新的创新
以现代人的审美打造富有意味的事物


实木桌餐桌,硬朗流畅的线条
搭配复古花瓶,旧物感满满
吊灯也选择了与客厅落地灯相同的材质
一缕时光,一把编织椅,一种慢生活

/
主 卧
Master room
独特
/


四季植物和谐生长
起伏在居者的窗前
房子里的光影
将岁月更迭娓娓道来

/
次 卧
Second bedroom
治愈
/

这是一间斜顶卧室,斜顶的线条并不复杂
选用原木色系有放大空间的作用
削减了斜顶造成的压迫感

卧室的配色选择原木与白色搭配
此舒适柔和的空间
告别了喧嚣也寻求了治愈

/
衣 帽 间
Cloakroom
治愈
/

抬头便见到满眼绿意处于空间的视觉中心
一棵郁郁葱葱的树木在这里勃勃生长
阳光自然照射进来 由此真正让自然在室内蔓延
再无室内外界限的硬性分隔
并将无限的景致纳入有限的尺度中

改造前后对比 | Contrast
客 餐 厅
Guest restaurant



入 户
Porch

主卧
Master BedRoom


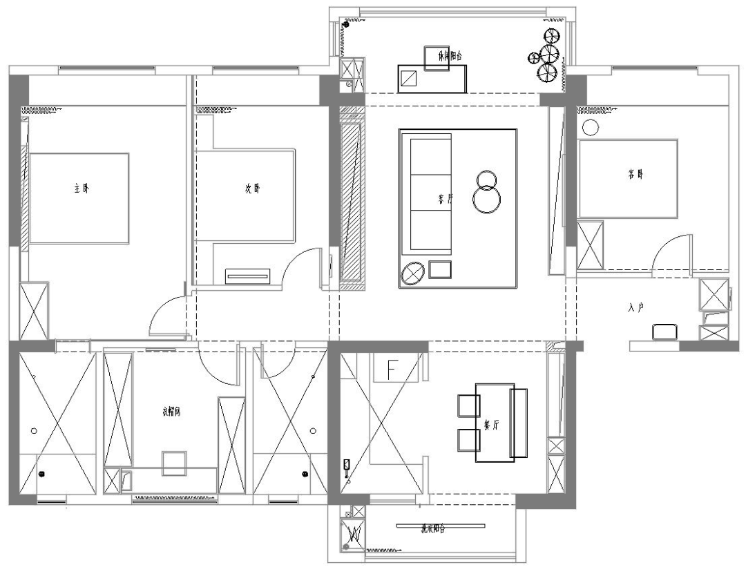
户 型 图 | Layout diagram

说浪漫一点
好的设计不是风格的展示和潮流的拼凑
为的是回到居住 回到最基本的关乎生活的诗意与叙事

金盘网APP
金盘网公众号
金盘网小程序


