开封枫华金明府六期样板间156户型样板间
本案袭呈东方的极简的美学,秉承大道至简,要求绝对的单纯,历经时间洗礼后低饱和的城墙色极具贵族气质,多肌理同色系(木/涂料/硬包/皮质)大面积的低饱和素色运用,丰富中呈现极度的单纯,创造空灵又不失细节的工造精品,摈弃一切多余,寻求从“物理空间”到“人本...
- 项目名称:开封枫华金明府六期样板间156户型样板间
- 项目地点:河南省 开封市 龙亭区复兴大道与金明...
- 开发商:新枫华置业
- 设计参考价:¥5000/㎡
- 销售参考价:¥8000/㎡
- 项目类型:住宅
- 形态:示范区
- 市场定位:改善系
- 建成时间:2021年
- 风格:中式
- 主力户型:高层 平层 120-144㎡ 3室 2厅 2卫
- 设计面积:156㎡
- 容积率:3.5
- 装修类别:毛坯
- 发布日期:2022-08-15
- 最近更新:2022-08-28 09:07
而城市则是文化的容器与载体
穿越千年与风雅宋相遇
我们是向往中的文人墨客
焚香抚琴
笔墨生香

宋代的极简美学经由庄,禅哲学与理学的过滤与沉淀后,宋人的审美已经提炼到极为纯净的程度,抛弃了表面的物化,寻求心灵情景精深透妙的观照,以及情感意绪体贴入微的辨察,这种看遍千色后的提纯,是大美后的极致表达。时间是神秘的切面艺术,根源与未来,时间的维度交织错落,透视两个时代的重叠,唤醒属于母语本身的奢雅,更新迭代,成就令人向往的未来生活日常。
本案袭呈东方的极简的美学 ,秉承大道至简,要求绝对的单纯,历经时间洗礼后低饱和的城墙色极具贵族气质,多肌理同色系(木/涂料/硬包/皮质)大面积的低饱和素色运用,丰富中呈现极度的单纯,创造空灵又不失细节的工造精品,摈弃一切多余,寻求从“物理空间”到“人本精神”的回归。
材质管理

色彩管理

氛围管理

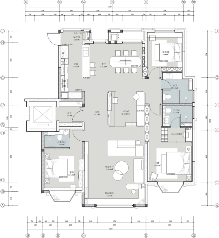
项目平面图

彩色鸟瞰图

项目名称:枫华金明府六期样板间156户型样板间
设计团队:上海筑详建筑装饰设计有限公司
项目地点:开封市龙亭区复兴大道与金明大道交叉口
设计面积: 156㎡
甲方管理团队:李霄 马国峰 王淑娴
项目摄影: 如初摄影工作室
项目灯光:SCL照明设计
设计时间:2020.12
开放时间:2021.05
主要材料:潘多拉岩板 保加利亚灰石材、皇家白玉瓷砖、人字拼木地板、米灰色艺术涂料、灰色山纹木饰面板、米灰色烤漆板、灰色麻质壁布、米灰色皮革、粉色皮革、枪灰色不锈钢、金色做旧不锈钢、超白银镜、欧茶镜、艺术玻璃、亚克力
玄关及多功能室
玄关的石材岩板贯穿整个空间,大自然的机理与雕琢精美的玛瑙狮子在灯光的映衬下,让诗意与灵动扑面而来,直击心灵!移步换景,打造相互交叠渗透的空间关系,打破室内的空间界限,创造多功能可焚香/点茶/挂画/插花/满足家人之间的情感交互日常,在这里感受时光的错叠、转折,仿佛万物都皈依在这空间,方寸之间窥万千世界。



客厅
客厅/餐厅/与多功能室形成更为流动的开放可能,通过极简的线条,围而不隔的功能,勾勒出更多灵动的模糊地带,创造更多承载风雅的生活可能。清透的白纱过滤出光与影交错,时光在空间中流动,为空间增添灵动的安宁。潘多拉石材背景墙的自然机理诉说着大自然历经万年所创造的杰作,结合精美的壁炉,跳动的炉火,悠扬的音乐,躺平在舒服的休闲躺椅上迷离双眼,如梦似醒,超然物外,回归内心最柔软安然与恬静。





多面沙发灵活自由,配合多层次相互开放的场景分区,沙发背景的的木饰面散播着质朴自然机理,与支撑壁饰的金属构建形成精工以及自然的对话,素与朴,雅与拙的纯粹结合,温润清澈,形成安静且极具张力的空间语境,极简中包含着更深渺空远的“意境”












餐厅






餐厅布局自由中透着秩序,开放式的中西厨把空间尺度扩大延展,潘多拉石材延续客厅与玄关至吧台,昂贵的奢石与低饱和的暗红相互映衬,贵族气息铺面迎来,餐桌上暗香浮动,餐具器物散发着清澈奢雅、内敛自然的韵味,材质的质感、器物的语言,赋予空间更高层次的美学气质。
主卧及卫生间




主卧的麻布硬包背景延续至天花,质朴的质感包裹整个睡眠空间,精致的金属收口又透出极为严谨的奢华,奢华与自然形成对话,凸显自信与清雅的贵族气质,无论是充满艺术感的灯笼型玻璃吊灯,还是具有设计创新的边几,去除软装的堆砌,强化精致细节的工艺处理,体现出奢华过后对极简的自信与内在气场的丰盈。
长辈房





整体米灰调的长辈房,去繁就简的设计,让人尽享家的随性与惬意,飘窗设计的书桌兼茶桌延伸至墙体的书柜,增加了空间的功能性以及闲适轻松的氛围,背景墙的米灰色皮革,搭配几何图形的装饰画,简洁中透露着精致的细节。
女孩房



儿童房则用马卡龙的粉色和灰色来打造温馨、梦幻的主题氛围,墙面爱丽丝梦游仙境的主题挂画,让人不由自主的代入到电影的情节中,开放式的玻璃金属衣柜,满足功能的同时又兼具美观。
卫生间

三分离的卫生间设计更为简约、精致,淋浴间和马桶间的全落地艺术玻璃既强调了隐私性又恰到好处的分割了空间,墙面玉石的自然机理,清透奢雅,朦胧的通透感充盈了空间的丰富度,让空间在留白之余也更有韵味。凹凸有序的造型让空间摆脱枯燥、无趣,层次分明的同时也兼具实用性。
金盘网APP
金盘网公众号
金盘网小程序


