沈阳中粮京西祥云
大区建筑设计将古典的华丽与现代的简约相结合,通过对盛京文化多元化的演绎,采用现代典雅的建筑风格。设计从打造整体风格化出发,通过阳台、门窗、洞口、分户墙楼梯间等元素的凹凸,形成一种构成式的建筑语言。
- 项目名称:沈阳中粮京西祥云
- 项目地点:辽宁省 沈阳市经济技术开发区十三号...
- 开发商:中粮集团
- 销售参考价:¥12000/㎡
- 项目类型:住宅
- 形态:示范区
- 市场定位:改善系
- 建成时间:2021年
- 风格:现代
- 主力户型:高层 平层 90-120㎡ 3室 2厅 2卫
- 占地面积:78.65㎡
- 建筑面积: 246895.5㎡
- 容积率:1.8
- 发布日期:2022-07-04
- 最近更新:2022-08-24 19:33

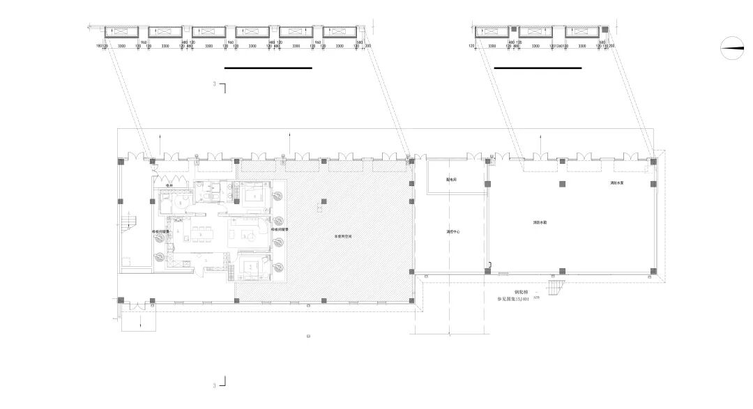
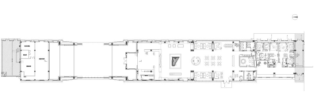
——京西祥云 人们习惯于把建筑称作世界的编年史; 当歌曲和传说都已沉寂,已无任何东西能让人回想起一去不复返的古代名族,只有建筑还在说话。 沈阳素有“一朝发祥地、两代帝王都”之称,是闻名遐迩的历史文化名城,因地处古沈水(今浑河)之北而得名。历史名城是沈阳的城市品牌,“盛京文化”是沈阳城市的无形资产,文化资源已成为城市软实力的重要内容。随着时间长河的不断向前,这座城市从艰苦的铁路建造时期走向现代制造业时代,更融合了金融、科技等现代服务产业,促进“盛京之城”的多元发展。 ⊙沈阳旧貌(图片来源网络) 本案位于沈阳市铁西原大明电工厂址处,基地四周临城市道路,地块东临十三号街,西临十四号街,北靠规划路,南侧为北渠岸路。地块紧邻西部大学城(工业大学、化工大学、辽宁轨道交通职业学校等学校),距宗地1.8km为地铁1号线终点站十三号街站,通过地铁一号线可抵达于洪广场、铁百、太原街及中街等商圈。 ⊙区位图 京西祥云正是从“盛京之城”多元化环境中演变而来,基地坐落于铁西板块,周边高等学府林立。整体规划设计延续城市肌理,呼应场地周边的城市天际线,外侧借鉴古典筑城形制,采用沿街商业将社区围合起来,形成“城廓”。 大区建筑设计将古典的华丽与现代的简约相结合,通过对盛京文化多元化的演绎,采用现代典雅的建筑风格。设计从打造整体风格化出发,通过阳台、门窗、洞口、分户墙楼梯间等元素的凹凸,形成一种构成式的建筑语言。 同时在立面材料和肌理的划分上结合铁西文脉特征,引入砖和金属的元素,呈现出独特的质感与时代感。 在立面门头上采用金属材质和石材的搭配,斜切挺拔的米白色的石材与精细刻画的仿铜铝板的搭配,实现了品质感的传递,塑造了项目高格调的现代气质。 作为大区的先行启动区——京西祥云展示中心,展示区设计概念以“生活”为设计理念,设计元素与大区的现代典雅风格立面的逻辑一致,打造一处体现展示中心形象的同时,实现“所见即所得”的空间效果,展示中心前场及入口“一次成型”,后期结合大区交付使用,避免改造产生费用,将沉没成本变为零成本。 ⊙示范区动线 主入口设计上通过中心仪式感入口空间和两侧序列感立面的打造,辅以挺拔有力的斜切金属,实现入口仪式感的强化。 近人尺度上基本金属格栅的精致细节体现出建筑精于细微。售楼处室内采用星级酒店大堂式空间设计,打造尊贵的归家感受。 地块东侧的十三号街是社区的主要城市形象面,为了加强城市展示效果,在立面设计上,东侧增加一个异形的金属体量,阵列的金属模块突显了铁西的工业文化与现代的建筑美学,同时实现在沿街立面上具有超强标识性,与周边环境进行抽象性切割。 沿街商业的打造将社区生活与展示融为一体,通过空间营造、比例调和等多维度来诠释一个高品质社区。大面积的通透玻璃材质打造建筑出建筑的专属性和吸睛点,结合不同的功能空间合理划分材质范围,同时在工艺上精益求精,实现室内空间与室外景观的有效融合,不同常俗。 ⊙售楼处平面-1 ⊙售楼处层平面-2 ⊙东立面 ⊙西立面 ⊙构造节点 人性化地社区打造不仅要又居住之心,更应融入生态、健康、交融、文化等多维度的活力之心,本案从多重因素着手,将规划、建筑、景观有效的合理整合,尊重场地肌理,保证城市天际线的同时,营造出不同尺度空间感,步移景异、层层递进空间带来归家行程非凡之体验。































金盘网APP
金盘网公众号
金盘网小程序




