绍兴·融创·黄酒小镇153㎡洋房样板房
融江南水乡之韵和黄酒文化之核,致敬城市菁贵一族,从色彩系统、艺术生活化、空间再设计、材质碰撞、灯光分区管理及陈设艺术多维度打造更高艺术审美、设计舒适度、设计品质细节。温暖的大地色点缀皮革棕与梧枝绿,运用微差色调营造温馨和谐的空间格调,契合绍兴人温婉...
- 项目名称:绍兴·融创·黄酒小镇153㎡洋房样板房
- 项目地点:浙江省 绍兴市 越城区黄酒小镇
- 开发商:融创东南区域集团浙中公司
- 设计参考价:¥4000/㎡
- 销售参考价:¥22400/㎡
- 项目类型:住宅
- 形态:示范区
- 市场定位:改善系
- 设计年份:2022年
- 建成时间:2022年
- 风格:现代
- 主力户型:小高层(7-11层) 平层 144-180㎡ 4室 2厅 2卫
- 设计面积:153㎡
- 容积率:2.2
- 装修类别:精装修
- 发布日期:2022-09-05
- 最近更新:2022-10-13 19:54

致敬 致新
融江南水乡之韵和黄酒文化之核
焕新绍兴的江南“新颜”
实现理想的生活方式
致敬城市菁贵一族,焕新城市新时代力量

如何根据精准定位去打造空间?
CITY IMPRESSION
绍兴,古称越州,是中国具有江南水乡特色的文化和生态旅游城市
绍兴是著名的水乡,桥乡,酒乡,书法之乡
绍兴是温婉的,从容的,雅致的,自然的城市
WHO ARE THEY
80后,90后为主的首改、再改地缘性客户
重视地块价值,重视品牌与文化认同感
在信息爆发的时代,能接受新鲜的生活方式与理念
他们追求舒适度、原创性、国际性、高级感
WHAT THEY PURSUE
更高层次的艺术审美
极高的设计舒适度
设计细节的关注
色彩系统

以温暖的大地色为主调,点缀皮革棕与梧枝绿,运用了微差色调营造温馨和谐的空间格调,契合了绍兴人温婉雅致的生活态度
艺术生活化

没有堆砌艺术品,而是将实用的艺术作品融入软装设计,更生活化地去展现空间,如匠人纯手工吹制工艺制作的LSA酒具,源自Sigvard Bernadotte原创设计的GEORG JENSEN的BERNADOTTE花器,TOM DIXON的Melt熔岩灯,Kenneth Cobonpue的Bloom花朵椅等等

材质的碰撞

灯光的分区管理

01.
经典雅致
时尚清新
CLASSIC and VOGUE




客餐厅的一体式布局打破了空间的界限,大面积的落地窗使得室内外的维度相互融合,相互转换。经典时尚的装饰提升了菁英圈层的生活品味和审美格局、感受延伸与融合的魅力

酒具:LSA

客厅长榻绗缝融合Dior的经典花纹,引起客户的共鸣,别出心裁提升了空间的格调与品质



吊灯:Tom Dixon

花器:Georg Jensen
02.
优雅隽永
静谧多元
ELEGANT and TRANQUIL




03.
低调内敛
温暖质感
MODEST and WARM

微差色调的设计让次卧空间宁静温润,砂岩肌理装饰画呈现了质感雅致



04.
果敢逐梦
天真烂漫
DREAMING and DISCOVERING


男孩房利用低饱和度的蓝色奠定了整个空间的格调:梦想、运动。棒球主题的装饰画装点着空间,掉落的棒球将梦想与现实拉近了距离


05.
雅致格调
开阔有序
EXQUISITE and OPEN



06.
宽敞大气
放松从容
SOPHISTICATED and RELEXING


原始平面图

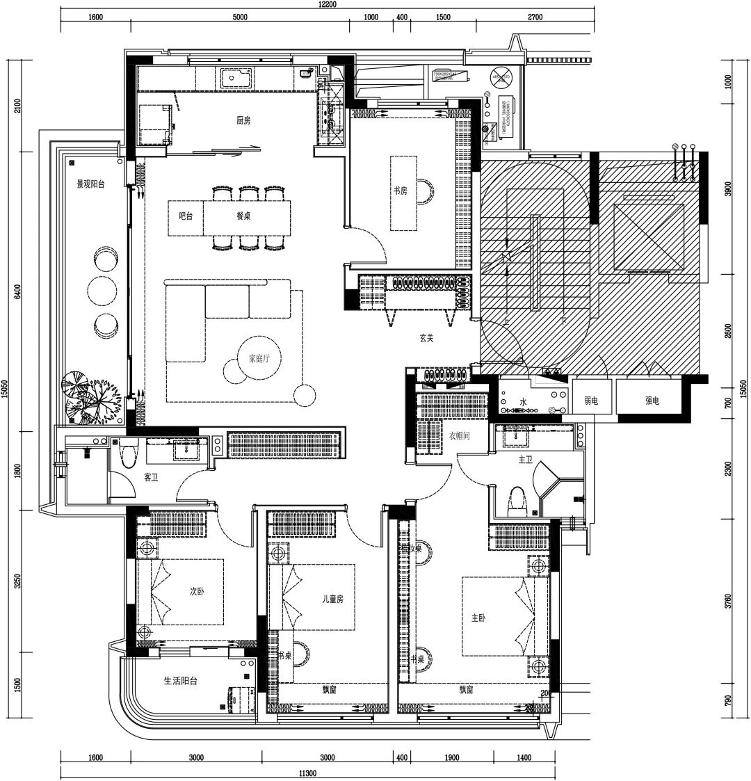
平面布置图


工程资料(含设计、工程、材料)
材料及其应用场景
铝板
铝板
铝板
铝板
铝板
铝板
铝板
铝板
木饰面
木饰面
木饰面
木饰面
木饰面
木饰面
木饰面
木饰面
金盘网APP
金盘网公众号
金盘网小程序


