碧桂园海安.山河宸院
碧桂园海安.山河宸院别墅
- 项目名称:碧桂园海安.山河宸院
- 项目地点:江苏省 南通市 海安县东洲公园50米碧...
- 开发商:碧桂园
- 设计参考价:¥3500/㎡
- 销售参考价:¥14700/㎡
- 项目类型:别墅
- 形态:示范区
- 市场定位:高端系
- 设计年份:2021
- 建成时间:2022年
- 风格:现代
- 主力户型:叠拼 210㎡以上 5室 2厅 3卫
- 占地面积:150000㎡
- 设计面积:364㎡
- 容积率:1.4
- 装修类别:精装修
- 发布日期:2022-09-07
- 最近更新:2022-09-07 18:20
碧桂园·海安山河宸院——都市轻奢 人文墅居

With the purest colors and simple lines Set off and practice the harmonious unity between man and nature Modern and humane design style Express people's loyalty to nature and their heart Elegant and extreme Italian style The design is simple but has great impact Deduction of rational aesthetics with space tone and light and shadow language.


一方围合下,藏着天地景色。
极简,留白,雨晴雪霁,四般风雅,
皆可见于山河宸院的庭院之中。
诸般生气流动,静坐伴一池清水,
亦能自得其乐。
——山河宸院别墅




一层客厅▲
空间的基调从静立一隅的画饰前徐徐展开,岁月的静好亦从居于一方的故事间娓娓而来。客厅空间以人文情感来营造生活的仪式感,试图创造一个充满无限可能的舒适空间。在冷暖色调的完美调和之下,空间的优雅感受在灵魂深处蔓延。皮革与石材参差错落,金属与水晶交融回响,在恰如其分的拿捏之间营造出了意大利风格的轻奢有度,宁静安恬。



一层餐厅▲
一层餐厅空间与会客厅接续相连,与餐厅、厨房完美衔接。半开放式的设计塑造了丰富的层次感,令空间的透彻与灵动兼容,美学与功能并重。咖色与米灰搭配,高定的餐具与家饰、不落窠臼的艺术品、圆融亮洁的金属壁挂、轻巧灵动的灯饰,共同演绎着现代美学生活的雅奢氛围。




二层长辈房▲
二层规划为长辈房与儿童房,长辈房旨在便于长辈日常生活起居,设计在满足人性化需求的同时收紧了空间节奏的张弛。选用静谧优雅的高级灰作为主调,以床品赋予其明亮与温度,带来舒适安静的同时又有匠心独运的灵机。



二层男孩房▲
流浪地球壁纸搭配床头的圆形床背板,仿佛令人置身于穿梭未来维度飞船,科技感十足的蓝色搭配温暖安逸的橙色给人梦幻般的感受,目光流转间,星空吊灯的璀璨与宇航员的一个跨越光年的挥手,总能让孩子们流连忘返。一起穿过时光隧道,来一场奇幻的飞跃之旅。


二层女孩房▲



三层主卧▲
主卧定位在整个空间的第三层,拥有着更富足的空间和更高度的私密性。床头背景以简练利落的线条造型,清爽简约的基调,经典永恒的灰色基调作为元素交相辉映,将简约的空间氛围和装饰质感依次呈现。
将下午茶功能代入衣帽间,充满优雅和精致的细节,展现了女主人内心松弛和内在充实的生活状态。大面积的落地窗在引入自然景致之后,任柔和充足的光线在屋内不断游走、穿插,将空间无限拉长,也拉伸开了现代都市人灵魂的怅然。
匠心游艇手作






夹层手作区▲
沉浸式的娱乐体验总会带给居住者生活的精致享受,游艇手作区便为这一空间功能应运而生。生活总是需要仪式感的,而家居物件,就是见证生活仪式感的最佳载体,简约、极致、艺术的空间,每一件家具,每一个装饰,每一个细节,都像一件件精致的艺术品。




负一层▲


户外露台▲
本案以理性思考回归居所本身,注重功能的再构造,在这自然而然的沉浸氛围中,内心纯净,生活极简,灵魂安栖。


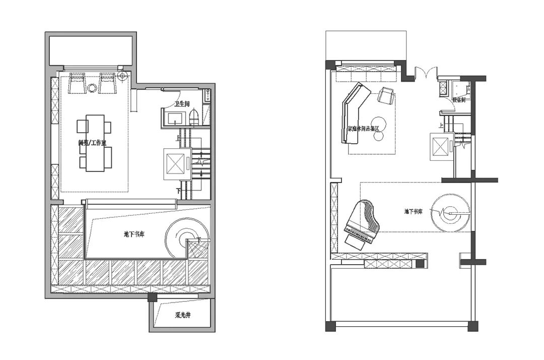
地下夹层及地下一层平面布置图▲

一层及二层平面布置图▲

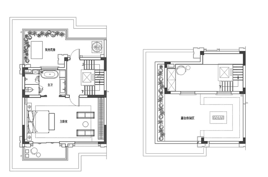
三层及四层平面布置图▲

工程资料(含设计、工程、材料)
材料及其应用场景
家具
家具
家具
家具
灯具
灯具
灯具
灯具
地毯
地毯
地毯
地毯
窗帘
窗帘
窗帘
窗帘
金盘网APP
金盘网公众号
金盘网小程序



