莆田大唐·湖心印象
莆田是一座历史文化悠久的古城,文化底蕴深厚,人文风情有着传统的归家理念。本案设计精心打造“山隐之下,悠然自得”的中式宜居环境。融合中式传统文化精髓,运用多样化的设计手法,以东方传统美学为基调,重在营造精神归属,打造神秘而丰富的意境。 城市遇...
服务范围:地产开发-住宅
销售参考价: 13500 元/平方米华南地区年度别墅空间金奖
闽桂琼地区年度预售楼盘金奖
- 项目名称:莆田大唐·湖心印象
- 项目地点:福建省 莆田市 涵江区六一路与凤阳路...
- 开发商:大唐地产
- 销售参考价:¥13500/㎡
- 项目类型:住宅
- 形态:示范区
- 市场定位:刚需系
- 设计年份:2022年
- 建成时间:2022年
- 风格:中式
- 占地面积:6439.61㎡
- 建筑面积: 106481.74㎡
- 设计面积:163㎡
- 容积率:2.5
- 绿化率:30%
- 规模:大型
- 地块:市区
- 地貌:滨水
- 装修类别:精装修
- 发布日期:2022-09-08
- 最近更新:2022-09-08 10:47
千年古城,赋予了涵江深厚的底蕴,
水系丰沛,穿城而过,
造就了这座江南水乡的繁盛。
大唐地产沿着城市发展的方向,
用建筑描绘着城市天际线,
将品牌注入城市内涵,
带给人们美好人居的生活体验。
大唐湖心印象项目以景观美学构筑生活美学,
将艺术的审美与体验带至日常,
让生活幻化为文化艺术的鉴赏之旅,
呈现“以东方文化创新,
引领国人居住生活方式的改变”的精神理念。

实景图-户外
城市遇见美学,品位成为日常;
园林遇见美学,归家亦是期盼。
秉持为国人匠造新中式人居的理念
缔造【湖心】叠墅
【叠墅户型】163㎡
莆田是一座历史文化悠久的古城,
文化底蕴深厚,人文风情有着传统的归家理念。
本案设计精心打造“山隐之下,悠然自得”
的中式宜居环境。
融合中式传统文化精髓,
运用多样化的设计手法,
以东方传统美学为基调,
重在营造精神归属,打造神秘而丰富的意境。



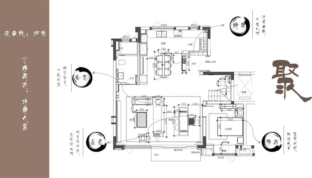
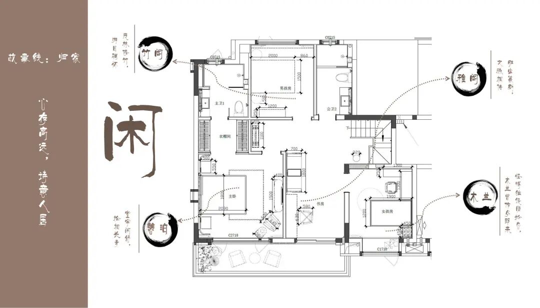
我们围绕着归家的路线,
每层空间都有各自的主题。
一层围绕着“聚”字展开,绮席,会客,品茗,
长夜邀云赏月,至亲相伴,偶有宾朋聚欢。
二层主题是“闲”,室宇闲舒,孩童精进不休,
文脉相传,自在融洽。远离喧嚣,岁月静好。
玄关
Porch

归家的时光总是舒适的,玄关处设置屏风端景,
形成半围合空间,玻璃隔断呈现诗意的朦胧美,
投光成影,“合”畅家和万事兴。
客厅
Living room





实景图-客厅
远山绵延,意韵悠长。花枝三两,禅心风雅。
书画、器物、家具,
皆于东方的洗练简约中透出细致绵密。
自成一派内敛、厚德气度。
相邻的品茗区让优雅的传统审美融入日常生活,
空间沉稳的格局结合灯光的变化,
显现气定神闲的从容。
日升月落,四时风雅,变幻的是世事纷扰,
不变的是静逸的心境。
餐厅
Restaurant



实景图-餐厅

实景图-厨房
开放式的餐厨区设置合理的动线,
环形通道与开阔视野,增加空间通透感。
细腻的材质变化,在稳重的空间增添些玩趣,
营造良好的沟通氛围。
一日三餐,一家人尽享亲昵时光。
长辈房
Elder Room


实景图-长辈房
长辈房宁静素雅,
极具东方色彩元素的陈设,
银杏几枝,绣于素淡的象牙黄底调上,
营造创造出一方安宁的休憩场所。
主卧
Master Bedroom


实景图-主卧
床头背景延续弧形手法,
山水、笔墨自由融合的意境,
为睡眠空间平添一份灵动之气。
卧室撷取清雅碧玉糅合点缀,温度与质感并存,
以含蓄的现代方式诠释东方意境,
陈设置景,简凝诗意。
丝、绣、铜,物品陈设与空间产生微妙联结,
深究之下无不贯穿着生活感悟和对“雅”的思考理解。
男孩房
The boy room


实景图-男孩房
绿竹成荫,黑白对弈,彼此交融成趣,
因艺术形式牵引文化感受的沉浸体验。
“愿历尽千帆,归来仍少年”
女孩房
The girl room


实景图-女孩房
女孩房灵感来源于迪士尼动画花木兰,
“紫房日照胭脂拆,素艳风吹腻粉开。
怪得独饶脂粉态,木兰曾作女郎来。”
窗外窗内皆是景,粉底花蝶,逸趣自成间,
又期待未来的华丽蜕变。
书房
The study room


实景图-书房
男主人对于东方文化、
传统趣玩有着浓厚的兴趣,
开放式书房便是一个安放其兴趣爱好的
独立私享场域。素朴书案、木版刻字墙饰、
传统木雕、刻字艺术、微雕家具,
无不流露出东方的韵律。闲暇时刻,
男主人在这一隅
享受木雕的沉浸乐趣,
或是沏上一壶清茶,
与人对弈数局,酣畅尽致。
项目信息
项目名称|莆田大唐·湖心印象
项目地址|中国·莆田·涵江区六一路与凤阳路交界处
户型面积|163㎡
甲方团队|陈颖 刘彰伟 郭秀
硬装设计单位|厦门点墨环境艺术设计有限公司
软装陈设单位|厦门道恩建筑设计有限公司
完成时间|2022年5月
金盘网APP
金盘网公众号
金盘网小程序




