淮安中海·九樾架空层
后疫情时代,居家的日常生活让我们重新思考社区空间的本质,生活方式和生活观念的改变,让架空层代表的社区互动空间回归产品逻辑,成为地产关注新主题。在社区互动空间受到重视前,地产商们对架空层的处理方法,是招商一些社区店面、放置休闲的桌子椅子,或是摆放休闲...
- 项目名称:淮安中海·九樾架空层
- 项目地点:江苏省 淮安市淮安市
- 开发商:中海集团
- 销售参考价:¥14000/㎡
- 项目类型:其他
- 形态:示范区
- 建成时间:2021年
- 风格:现代
- 占地面积:34297㎡
- 建筑面积: 113960㎡
- 容积率:2.5
- 发布日期:2022-09-20
- 最近更新:2022-09-21 00:15

▲场地分析图
回应人们对社区生活的期待,柘壹设计携手淮安中海,从生活的目的出发,探寻社区互动空间的使用逻辑,摆脱架空层同质化的功能、形式及运营。通过分析使用者全天户外活动区域在日照中的变化,选取适当功能场地打造社区架空层,并从全日架空层使用频率入手,探索客群内心的真实需求,柘壹设计通过模块化体验、室内外场景的联动与智能管理重塑着多元场景的社区聚场。

在以“回归产品逻辑”为设计哲学的生活引导者柘壹设计眼中,普适性的场景功能已不能唤起消费者对现代人居的憧憬感,而人们对活动、社交、休憩、会谈种种多元生活需求的注入,让架空层设计进入研究迭代的过程。在淮安中海·九樾架空层中,柘壹设计以多重调研升级对产品内容的营造,塑造亲子互动、康体设施、社交空间、老幼活动四大场景体验,将空间营造呈以丰富的互动、合理的功能,直触社区聚场的本质,建构全生命周期体验中的社区交互场域。


着意营造现代人文氛围,力求将形式美融入功能需求,设计师为居民创造自然优美、多元丰富并安闲舒适的室外休憩空间,专属水院与葱茏绿林组成的迎宾前景,在功能关怀中满足归家仪式感。
得益于系统化的产品逻辑,在柘壹设计看来,架空层并不是一个个密不可分的功能盒子,站在更为宏观的角度观察,架空层作为室内与室外的衔接空间,与向外生长的景观、内置的场景应是一个有机的整体。

因此,设计师选择通透的落地玻璃、绿篱围墙、栏杆扶手等半围合手段,使场内场外形成互通空间,并设置连廊让空间更具联通性,在序列感与延伸感中,柘壹设计于此塑造出开放自由、融合自然的“社区洄游聚场”。


从空间的功能讲起,对未来社区的畅想加速着架空层的产品迭代,在运动空间的沉浸体验中,社交欢乐场彰显着丰富而灵动的社区生活范式。

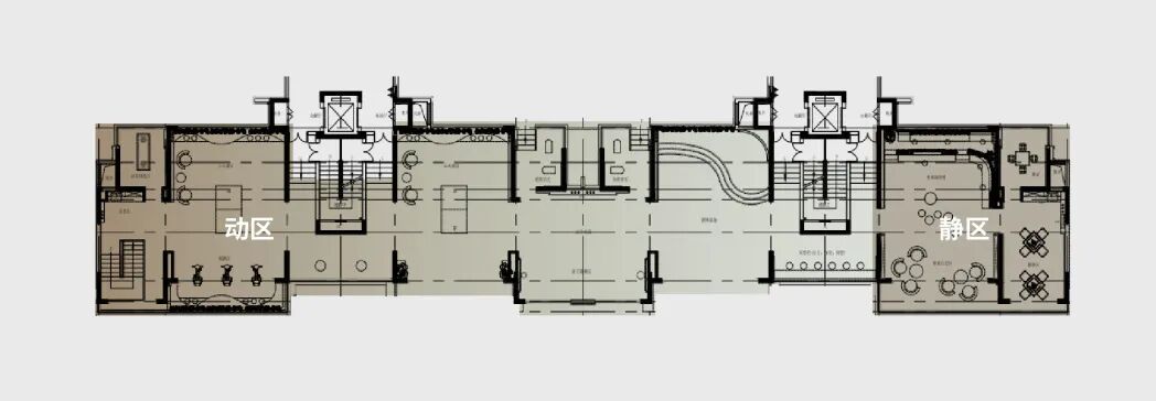
“作为人居空间向外延伸的生活空间,社区的配套应是全龄、多元及个性的。”代入使用者使用场景思考空间,架空层在柘壹设计的笔中突破年龄限定,以灵活可生长的社区互动场景为区域居住者带来全新的功能体验,用常态模块化的需求空间,配合场景的使用,构筑社区生活的完整故事线。




为孩子们打造的室内小型篮球场,契合使用者的玩乐状态,设计师以碰撞的色彩赋予空间灵动的节奏感,明亮的线条灯隐藏在栅格条纹吊顶中,曲面异形的篮板暗合地面的球场界线,在保障安全之余为孩子的快乐运动预设更多趣味。






居家之外的运动生活在丰富多彩的乒乓赛事对决中展现,淮安中海·九樾架空层个性潮流化的空间营造,让健身区域成为社区中互动空间最受欢迎的版块。立面丰富的元素符号化为视觉引导,串联专项运动划分的空间功能板块,让使用者面对自然的健身新场景,随时随地融入健康生活。




休闲区一侧,空间干净温馨的气质在现代的设计手法中显现,设计师摈弃繁杂的装饰,秉持着时尚、优雅的设计语素,注重设计的整体感和韵律感,以建筑、景观、室内融合的一体化场景,打造多功能会客空间,呈现自然、艺术、舒适的洽谈空间。



相同的志趣和鸣中,邻里之间的畅谈与书香,在生活的情景感里重新定义空间的社交生命力。在适意的午后,与三两邻居于书吧静坐,或徜徉书海,或举子对弈,生活的美好便在你来我往间串联。
“处理好架空层项目与人、社区、场域之间的关系,通过生态系统性的理性思考,我们为居住于此的人们带来可探索的互动体验,升级社区生活,提升聚场价值。”在淮安中海·九樾中,“楼下见”的睦邻生活成为柘壹设计的叙事选择,以多元的架空层设计营造全民共享前置场景的生活蓝本,不设限、不趋从,追求当代、简洁的设计语言,实现生活的高级趣味 —— 情致满足、精神共鸣与品质追求,重塑现代人居理念,以全新的社区聚场给予使用者生活的体验感与归属感,引领惬意优雅的都市生活。
▲效果图

▲平面示意图
金盘网APP
金盘网公众号
金盘网小程序




